Back

Bude, EX23 8DE

Detached House 4 Bedroom 1 Reception 3 Bathroom
EPC Rating: C71/B82
Asking price £435,000

Get directions to

, Bude EX23 8DE

 
Points Of Interest

What's your home worth?

We offer a FREE property valuation service so you can find out how much your home is worth instantly.

Key Features
  • DETACHED HOUSE
  • 4 BEDROOMS (1 EN-SUITE)
  • IMMACULATELY PRESENTED THROUGHOUT
  • WALKING DISTANCE OF BEACHES AND COAST PATH
  • TOWN CENTRE LOCATION
  • OFF ROAD PARKING
  • GROUND FLOOR BEDROOM AND SHOWER ROOM
  • EPC RATING C
  • COUNCIL TAX BAND TBA
FREE Instant Online Valuation in just 60 SECONDS
Click Here
Property Description

Additional Information

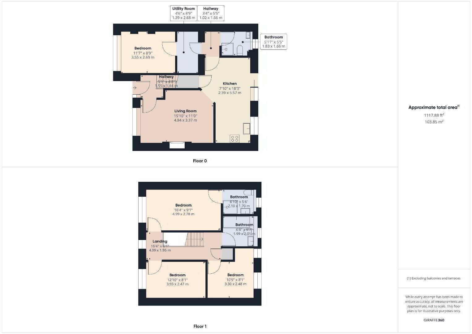
An exciting opportunity to acquire this 4 bedrooms (1-en-suite) detached house situated in a sought after location close to the popular town centre and beaches. The property would make a great family home whilst equally suiting as an attractive second home/ investment. Driveway providing off road parking and enclosed rear garden. EPC Rating C.

Entrance Hall
Staircase leading to first floor landing. Door leading to Living Room.
Living Room
Ample space for a matching suite. Feature fireplace with stone surround and slate hearth electric fireplace. Window to front elevation.
Kitchen/ Dining area
Modern fitted kitchen comprising a range of base and wall mounted units with Quartz work surfaces incorporating inset 1 ½ stainless steel drainer unit with “flexi” mixer tap over and waste disposal unit, 5 ring electric hob with extractor hood over and double oven. Integrated ‘Miele’ dishwasher and under counter fridge. Understairs larder cupboard. Ample space for dining table and chairs. Sliding patio doors opening out to enclosed garden. Window to rear elevation.
Shower Room
Enclosed shower with mains fed drench shower over, wall hung vanity unit with inset sink unit, concealed cistern WC. Frosted window to rear elevation. Heated towel rail. Extractor fan.
Utility Room
Space for washing machine and dryer. Cupboard housing boiler.
Bedroom 4
Double bedroom with window to front elevation.
First Floor Landing
Doors to bedrooms, bathroom and airing cupboard.
Bedroom 1
Spacious double bedroom with window to front elevation. Door leading to:
En-suite
Enclosed shower cubicle with mains fed drench shower over, wall hung vanity unit with inset sink unit, concealed cistern WC. Heated towel rail. Extractor fan. Frosted window to rear elevation.
Bedroom 2
Double bedroom with window to front elevation.
Bedroom 3
Double bedroom with window to rear elevation.
Bathroom
Enclosed panel bath with mains fed drench shower over, pedestal hand wash basin and concealed cistern WC. Heated towel rail. Frosted window to rear elevation.
Outside
To the front of the property there is a bricked paved off road parking area. Paved pathway leads to a gate providing pedestrian access to the enclosed garden, partially laid to lawn enjoying a sunny south westerly aspect. Boarded by panel fencing. Useful detached Workshop/shed and built in store with power connected.
EPC
Rating C.
Council Tax Band
TBA.

Brochure (PDF 1.6MB)
FREE Instant Online Valuation in just 60 SECONDS
Click Here

Contact Us

Request a viewing for ' Bude, EX23 8DE '

If you are interested in this property, you can fill in your details using our enquiry form and a member of our team will get back to you.

Please check you have entered all details correctly:

By submitting this form, you are agreeing to our website terms & conditions, and consenting to cookies being stored on your computer.

Free Sales Valuation

Want to know how much your property is worth?

Get an instant valuation of your property value.

Free Sales Valuation