Back

Welcombe, Bideford, EX39 6HH

Detached House 4 Bedroom 4 Reception 1 Bathroom
EPC Rating: G16/D66
Sale agreed £250,000

What's your home worth?

We offer a FREE property valuation service so you can find out how much your home is worth instantly.

Key Features
  • Full renovation required - cash buyers only
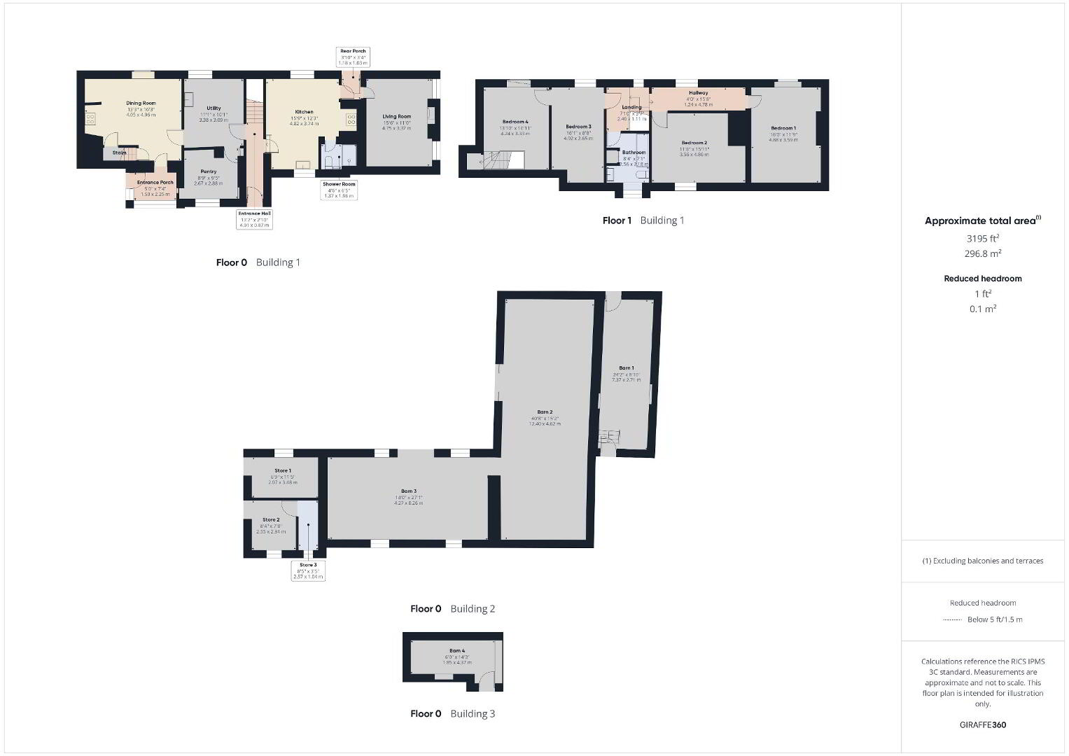
  • Detached 4-bedroom period farmhouse
  • Approx. 3,195 sq ft including barns and outbuildings
  • Generous 0.31 acre plot
  • Located in an Area of Outstanding Natural Beauty
  • Extensive barns and storage rooms
  • Potential for conversion or redevelopment (STP)
  • Multiple reception rooms and utility areas
  • Rural yet accessible location near Welcombe village
  • Approx. 20 minutes to Bude and wider coastal amenities
FREE Instant Online Valuation in just 60 SECONDS
Click Here
Property Description

Additional Information

Exciting Renovation Opportunity – Detached 4-Bedroom Farmhouse with Extensive Barns on a 0.31 Acre Plot – Area of Outstanding Natural Beauty – Cash Buyers Only

Occupying a generous 0.31 acre plot within a designated Area of Outstanding Natural Beauty, Lower Mead Farm represents an incredibly rare opportunity to acquire a substantial detached farmhouse with extensive barns and outbuildings in a peaceful rural hamlet near Welcombe.

Requiring complete renovation throughout, this is a project for the bold and imaginative — offering a blank canvas for those seeking to restore or redevelop to create their ideal family home. The existing footprint, which includes a large main dwelling and a range of stone barns, offers enormous potential for transformation (subject to the necessary planning consents), whether for a spacious family home, dual living, creative workspace, or tourism-related venture.

Surrounded by rolling countryside and far-reaching views, whilst just a short drive to the coast, this is a chance to create something truly special in a stunning and secluded setting. Available to cash buyers only, this is a genuine one-off with scope rarely found in today’s market. Viewings strictly by appointment with the appointed agent. Contact 01288 355066 or email bude@bopproperty.com for further details. EPC E. Council Tax Band E.

Exciting Renovation Opportunity – Detached 4-Bedroom Farmhouse with Extensive Barns on a 0.31 Acre Plot – Area of Outstanding Natural Beauty – Cash Buyers Only

Occupying a generous 0.31 acre plot within a designated Area of Outstanding Natural Beauty, Lower Mead Farm represents an incredibly rare opportunity to acquire a substantial detached farmhouse with extensive barns and outbuildings in a peaceful rural hamlet near Welcombe.

Outside
Set within a peaceful 0.31 acre plot, the property is approached via a quiet country lane, with gated access opening into a private courtyard-style garden and hardstanding. Mature boundaries provide a good level of privacy and seclusion, with the surrounding open countryside offering panoramic rural views. To the rear of the main residence is an impressive configuration of barns and outbuildings, including multiple store rooms and a range of large, open-plan barns – all offering excellent flexibility for potential conversion, workshops, or agricultural use (subject to planning).
Anti Money Laundering
Before any sale is formally agreed, we have a legal obligation under the Money Laundering regulations and Terrorist Financing Act 2017 to obtain proof of your identity and of your address, take copies and retain on file for five years and will only be used for this purpose. We carry out this through a secure platform to protect your data. Each purchaser will be required to pay £20 upon an offer verbally being agreed to carry out these checks prior to the property being advertised as sale agreed.
Services
Mains Water, Electric. Septic Tank located in nearby field.
Agents Note
The executors have informed the agent that the roof of the property is asbestos.
EPC
Rating E
Council Tax
Band E

Brochure (PDF 3.1MB)
FREE Instant Online Valuation in just 60 SECONDS
Click Here

Contact Us

Request a viewing for ' Welcombe, Bideford, EX39 6HH '

If you are interested in this property, you can fill in your details using our enquiry form and a member of our team will get back to you.

Please check you have entered all details correctly:

By submitting this form, you are agreeing to our website terms & conditions, and consenting to cookies being stored on your computer.

Free Sales Valuation

Want to know how much your property is worth?

Get an instant valuation of your property value.

Free Sales Valuation