Having been lovingly looked after by the current owners for the last 22 years, this handsome detached home offers a wealth of charm and character throughout and is set within grounds of just over half an acre.
Occupying an attractive location towards the edge of the village of Winkleigh, which lies amidst Devonshire countryside, yet within easy reach of the services and amenities the highly regarded village has to offer.
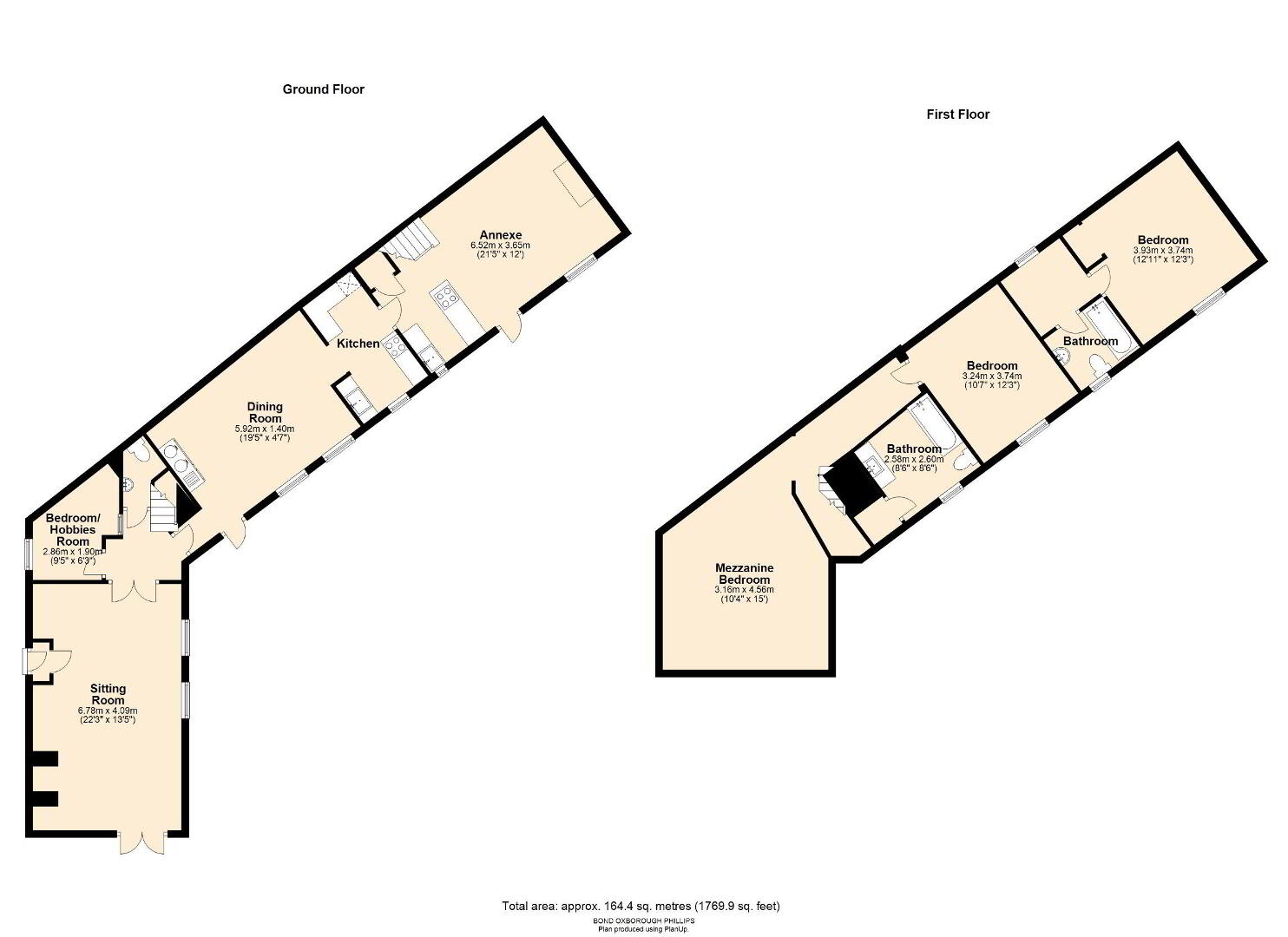
The accommodation is extremely versatile and offers many options for comfortable family living. The front door opens into an attractive sitting room with a valuated ceiling and exposed beams. The inner hallway then leads to a useful study, cloakroom and stairs rising to the first floor where there are two bedrooms and bathroom. From the inner hallway, you reach the dining room, with a delightful window seat and door that leads to the garden. There are two kitchen areas and at the end of the property, another sitting room with a stable door leading into the garden with a second staircase leading to a further double bedroom and bathroom. This end of the house has been wonderful guest accommodation for the current owners, but has great potential to be a self contained annexe or let for air b n b.
Outside, there is a useful detached garage and driveway providing off road parking for two/ three vehicles. The well tended, mature gardens are a particular feature of the property, offering peace and privacy, and enjoying exceptional views over the surrounding countryside towards Dartmoor. Arranged over three main sections, the lower part of the garden also benefits from access via a five bar gate on the lane.
We offer a FREE property valuation service and Instant Online Valuations so you can find out how much your home is worth instantly.
Book a market appraisal Instant ValuationLocation
Then why not take a look at…