Substantial Five-Bedroom Period Townhouse with Huge Potential – Central Bude
Occupying a highly convenient position just a short walk from Bude’s town centre, canal and beaches, this impressive five-bedroom period home offers generous accommodation arranged over three floors and presents an exciting renovation opportunity for buyers looking to add value.
Packed with original character and period features, the property offers a flexible and well-proportioned layout that would suit a variety of uses, from a large family home to multi-generational living or a spacious coastal retreat.
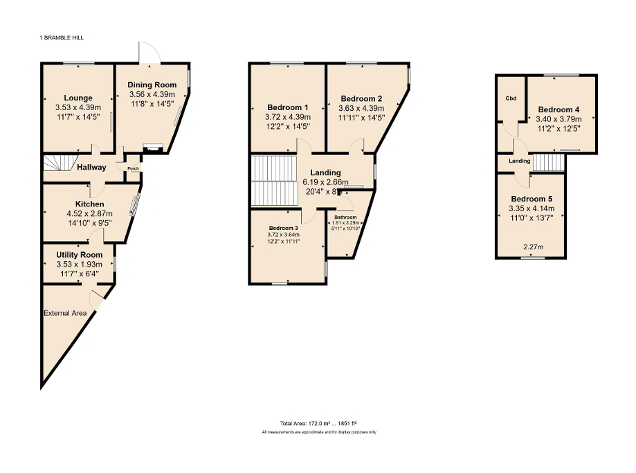
The ground floor comprises a bay-fronted dining room, a spacious living room, and a kitchen with adjoining utility room, pantry and rear store, offering excellent scope for reconfiguration and modernisation. The upper floors provide five bedrooms alongside a family shower room, with rooms of a size and layout that lend themselves equally well to bedrooms, home offices or hobby spaces.
Outside, there is a small front courtyard garden, ideal for potted plants or a bistro table. While the property does not have private parking, on-street parking is readily available directly outside.
Requiring modernisation throughout, this is a rare opportunity to restore and enhance a sizeable period property in one of North Cornwall’s most sought-after coastal towns.
Available with no onward chain.
Council Tax Band C | EPC Rating G
Substantial Five-Bedroom Period Townhouse with Huge Potential – Central Bude
Occupying a highly convenient position just a short walk from Bude’s town centre, canal and beaches, this impressive five-bedroom period home offers generous accommodation arranged over three floors and presents an exciting renovation opportunity for buyers looking to add value.
- Entrance Porch
- 1.22m x 0.91m (4'0" x 3'0")
- Entrance Hall
- Staircase leading to first and second floors.
- Living Room
- 4.11m x 3.48m (13'6" x 11'5")
Feature fireplace and windows to front elevation. - Dining Room
- 3.89m x 3.63m (12'9" x 11'11")
Dual aspect reception room with feature fireplace and ample space for dining table and chairs. Door leads to the enclosed front courtyard garden. - Kitchen
- 4.52m x 2.84m (14'10" x 9'4")
A fitted range of base and wall mounted units with work surfaces over incorporating stainless steel sink drainer unit with mixer tap and recess for oven. Useful built in cupboards and under stair cupboard. Space for breakfast table and chairs with window to side elevation. - Utility Room
- 3.23m x 1.93m (10'7" x 6'4")
Base and wall mounted units with work surfaces over incorporating stainless steel sink drainer unit with mixer taps, space and plumbing for dishwasher, washing machine and space for tumble dryer. Built in pantry cupboard. Window to side elevation. Door to: - Rear Porch/Store Room
- 5.77m x 2.77m (18'11" x 9'1")
A useful store room perfect for surf boards and bikes. Door to WC. - First Floor Landing
- Staircase leading to second floor landing. Window to side elevation.
- Bedroom 1
- 3.58m x 2.9m (11'9" x 9'6")
Double bedroom with built in wardrobe and dual aspect windows. - Bedroom 2
- 3.86m x 3.63m (12'8" x 11'11")
Double bedroom with built in wardrobes and dual aspect windows. - Bedroom 3
- 3.86m x 3.53m (12'8" x 11'7")
Double bedroom with feature fireplace and window to front elevation. - Shower Room
- 3.68m x 1.85m (12'1" x 6'1")
Enclosed double shower cubicle with electric shower over, low flush WC, vanity unit with inset wash hand basin, heated towel rail, window to side elevation. - Second Floor Landing
- Built in cupboard.
- Bedroom 4
- 3.89m x 3.56m (12'9" x 11'8")
Double bedroom with window to front elevation enjoying sea glimpses. Access to under eaves storage. - Bedroom 5
- 4.2m x 2.26m (13'9" x 7'5")
Window to rear elevation. - Outside
- Front courtyard garden with brick wall providing an ideal spot for al fresco dining.
- Services
- Mains electric, water and drainage.
- Council Tax
- Band C
- EPC
- Rating G
- Anti- Money Laundering
- Before any sale is formally agreed, we have a legal obligation under the Money Laundering regulations and Terrorist Financing Act 2017 to obtain proof of your identity and of your address, take copies and retain on file for five years and will only be used for this purpose. We carry out this through a secure platform to protect your data. Each purchaser will be required to pay £20 upon an offer verbally being agreed to carry out these checks prior to the property being advertised as sale agreed.
- Agents Note
- Our clients may request for a public notice to be issued upon any acceptance of an agreed price on the property.