Tucked away in the charming village of St Issey, just moments from Padstow and the stunning North Cornwall coastline, this beautifully presented chain-free home offers the perfect blend of peaceful village living and everyday convenience.
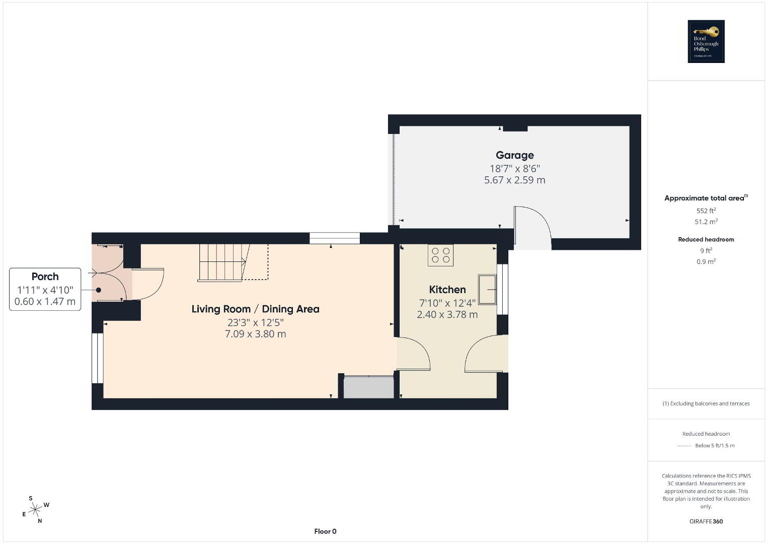
Inside, the property features a bright and spacious open-plan living and dining area, ideal for both relaxing and entertaining. This flows seamlessly into a brand-new, unused kitchen that opens directly onto the garden, creating an easy connection between indoor and outdoor living.
Upstairs, there are two generous double bedrooms, both filled with natural light and offering built-in storage.
Outside, the property enjoys gardens to both the front and rear, with the rear garden providing a wonderful space for outdoor dining, gardening, or simply relaxing. There is also exciting potential to extend (subject to planning permission).
Further benefits include driveway parking for up to three vehicles and a private garage, offering additional storage or workshop space.
Located in the heart of the welcoming village of St Issey, the property is close to the popular Ring O’ Bells pub, village hall, primary school, and local amenities, with the Camel Trail, Wadebridge and Padstow all within easy reach.
Agents Note - The property is for residential use only and is not permitted for holiday letting.
Tucked away in the charming village of St Issey, just moments from the vibrant harbour town of Padstow and the spectacular North Cornwall coastline, this beautifully presented, chain-free home offers an exceptional opportunity to enjoy relaxed village living with everyday convenience close at hand.
Combining bright, well-proportioned interiors with a generous garden to the front and rear of the property. Offering exciting potential to extend (subject to planning permission), this is a home that effortlessly balances comfort today with possibilities for tomorrow.
Step inside and you are greeted by a wonderfully light and airy open-plan living and dining space, a sociable, versatile room designed for both quiet evenings and entertaining alike.
Flowing seamlessly from this space is the brand new kitchen, unused and ready for its very first owner. Modern, fresh and full of potential, it opens directly onto the garden, creating an easy connection between indoor and outdoor living.
Upstairs, two spacious double bedrooms offer calm and comfortable retreats. Both rooms enjoy plenty of natural light and generous proportions, also built in storage. Providing flexibility for bedroom furniture or even a home working space.
The rear garden is a true highlight, beautifully sized and full of possibility. Whether you imagine summer dining, family gatherings, gardening projects or simply relaxing in peaceful surroundings, this outdoor space provides the perfect setting.
Rare for such a desirable village location, the property benefits from driveway parking for up to three vehicles, along with a private garage offering secure storage, workshop space, or further flexibility.
St Issey is a quintessential Cornish village, known for its welcoming community atmosphere and beautiful countryside surroundings. At its heart sits the popular Ring O' Bells pub and a historic parish church, giving the village a timeless charm.
For those who enjoy the outdoors, the renowned Camel Trail offers scenic walking and cycling routes along the River Camel, linking you to Wadebridge and Padstow. Meanwhile, the nearby town of Wadebridge provides an excellent range of shops, supermarkets and schools, ensuring practicality matches the picturesque setting. The local bus route is a short walk from the property.
St Issey Village Hall, Primary School and local restaurants are also just around the corner, giving a true sense of community in the area.
Agents Note -This property is not permitted for use as a holiday let. Residential purposes only. Please call to view - 01208 814 055
We offer a FREE property valuation service and Instant Online Valuations so you can find out how much your home is worth instantly.
Book a market appraisal Instant ValuationThen why not take a look at…