Back

Bideford, EX39 3QY

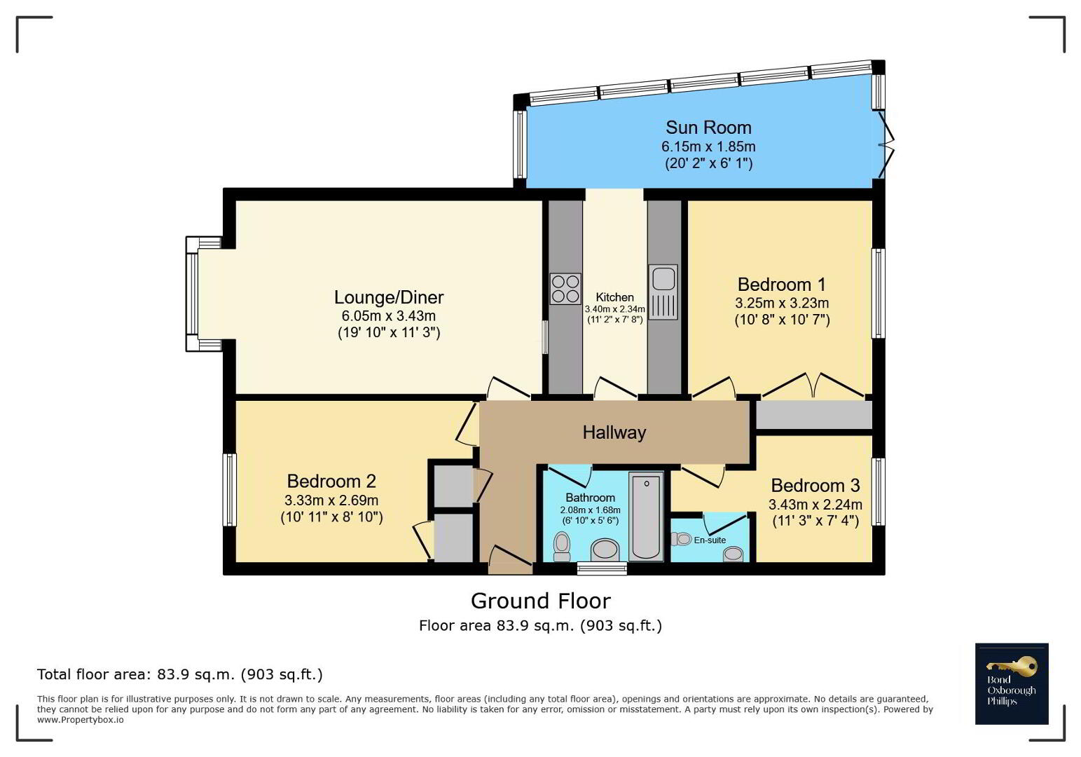
Detached Bungalow 3 Bedroom 1 Reception 1 Bathroom
EPC Rating: D68/B82
Asking price £320,000

Get directions to

, Bideford EX39 3QY

 
Points Of Interest

What's your home worth?

We offer a FREE property valuation service so you can find out how much your home is worth instantly.

Key Features
  • Detached 3-bedroom bungalow in a popular and established residential area
  • Generous plot backing directly onto parkland and open green space
  • Spacious lounge diner and bright, versatile sunroom with garden views
  • Well-equipped modern kitchen with appliances included
  • Plentiful driveway parking plus garage for storage or additional vehicle space
  • Private enclosed rear garden with decking and lawn, ideal for outdoor enjoyment
FREE Instant Online Valuation in just 60 SECONDS
Click Here
Property Description

Additional Information

Well-situated 3 bedroom bungalow backing onto green space, offering spacious living, generous parking, a bright sunroom and a private garden in a popular and established location.

Set within the ever-popular Londonderry Farm development, 21 Lane Field Road presents a fantastic opportunity to acquire a spacious and well-maintained 3 Bedroom detached bungalow in one of Bideford’s most convenient residential areas. Enjoying a generous plot and a wonderful open outlook, this is a home that offers both comfort and privacy in equal measure.

A standout feature of the property is its beautifully positioned rear garden which backs directly onto an open field with direct gated access. With no properties overlooking from behind, the garden feels exceptionally private and benefits from superb west-facing sunshine throughout the afternoon and into the evening - an ideal setting for relaxing outdoors, gardening or entertaining during the warmer months.

The bungalow also provides excellent parking arrangements, with a wide driveway comfortably accommodating 4 vehicles in addition to a garage, making it particularly appealing to families, multi-car households or those needing practical storage space.

Inside, the accommodation is bright, well-laid out and immediately welcoming. The reception space centres around a well-proportioned Lounge / Diner filled with natural light and offering flexible space for a variety of furniture layouts. The Kitchen is fitted with a good range of units and enjoys an adjoining Sunroom, utilised as a handy utility space leading directly to the rear garden.

There are 3 Bedrooms in total (2 comfortable doubles and a spacious single) along with a modern Bathroom, ensuring the home caters well to couples, small families or downsizers seeking single-storey living without compromising on space.

Londonderry Farm continues to be a highly desirable location thanks to its excellent access to local amenities and transport links. The property is within easy reach of Bideford College, Bideford Medical Centre, local bus routes and the Atlantic Highway, while the sandy beaches of Westward Ho! are only a 10-minute drive away.

Available for sale with no onward chain, this well-situated bungalow offers privacy, convenience and a rare open outlook. An early viewing is highly recommended.


Brochure (PDF 1.3MB)
FREE Instant Online Valuation in just 60 SECONDS
Click Here

Contact Us

Request a viewing for ' Bideford, EX39 3QY '

If you are interested in this property, you can fill in your details using our enquiry form and a member of our team will get back to you.

Please check you have entered all details correctly:

By submitting this form, you are agreeing to our website terms & conditions, and consenting to cookies being stored on your computer.

Free Sales Valuation

Want to know how much your property is worth?

Get an instant valuation of your property value.

Free Sales Valuation