Back

Holsworthy, EX22 6BB

Residential Land
EPC Rating: B46
Sale agreed £60,000

What's your home worth?

We offer a FREE property valuation service so you can find out how much your home is worth instantly.

Key Features
  • VERSATILE COMMERCIAL PROPERTY
  • PRIME TOWN CENTRE LOCATION
  • BUSINESS OPPORTUNITY
  • ATTRACTIVE FREEHOLD INVESTMENT
  • LAPSED PLANNING PERMISSION TO CONVERT THE FIRST FLOOR INTO A RESIDENTIAL APARTMENT
  • ALSO AVAILABLE TO RENT FOR £100 PER WEEK
FREE Instant Online Valuation in just 60 SECONDS
Click Here
Property Description

Additional Information

Bond Oxborough Phillips are delighted to present this excellent commercial investment opportunity, offering a versatile mixed-use property with significant potential.

The ground floor comprises a spacious retail unit, well-suited to a variety of commercial uses and benefiting from prominent frontage and flexible internal space.

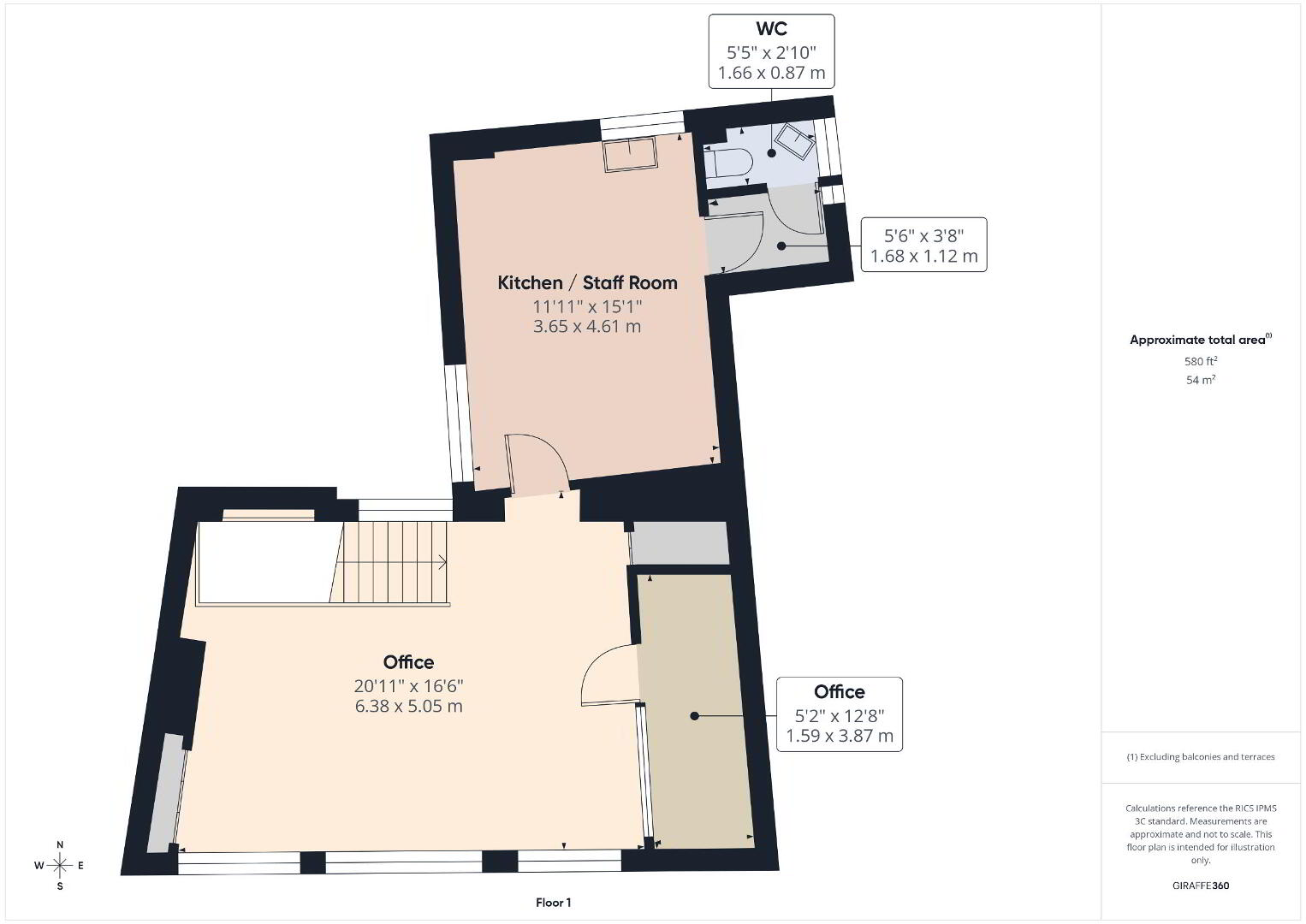
Arranged over the first floor is a generous office area, complemented by a staff room and WC facilities. Notably, the property has previously benefited from planning consent (now lapsed) for conversion of the first floor into a residential flat, presenting an exciting opportunity for redevelopment or reconfiguration, subject to the necessary consents.

This property represents an attractive prospect for investors seeking a commercial asset with future residential potential in a convenient and accessible location.

THE PREMISES AS IT STANDS COMPRISES (all measurements are approximate):-
MAIN GROUND FLOOR RECEPTION OFFICE
7.92m x 4.27m (26'0" x 14'0")
Heating/air conditioning unit. Good window frontage and display to Bodmin Street. Glazed front door. Range of fluorescent lighting. Stairs leading to:
FIRST FLOOR MAIN OFFICE
6.25m x 4.57m (20'6" x 15'0")
Heating/air conditioning unit. Range of fluorescent lighting. Double aspect windows. Access to boarded roof space.
INNER OFFICE
3.78m x 1.40m (12'5" x 4'7")
Twin fluorescent light. Wall heater.
KITCHEN/STAFF ROOM
4.57m x 3.51m (15'0" x 11'6")
Double aspect PVCu double glazed windows. Stainless steel single drainer sink unit. Tiled splashbacking. Double wall unit. Fluorescent lighting. Electric panel heater.
INNER LOBBY
CLOAKROOM
With low level WC. Wash basin. Tiled splashbacking. Wall heater. PVCu double glazed window.
SERVICES
Mains water, electricity, and drainage.
RATEABLE VALUE
TBC - Torridge District Council (01237 428700) will advise on rate relief that is available.
CURRENT RATES
TBC - Torridge District Council (01237 428700) will advise on rate relief that is available.
EPC RATING
Rating D.
AGENTS NOTE
The property has a flying freehold and is subject to flying freehold. Before any sale is formally agreed, we have a legal obligation under the Money Laundering regulations and Terrorist Financing Act 2017 to obtain proof of your identity and of your address, take copies and retain on file for five years and will only be used for this purpose. We carry out this through a secure platform to protect your data. Each purchaser will be required to pay £20 upon an offer verbally being agreed to carry out these checks prior to the property being advertised as sale agreed.
What3Words
testing.flattered.inversely

Brochure (PDF 1.6MB)
FREE Instant Online Valuation in just 60 SECONDS
Click Here

Contact Us

Request a viewing for ' Holsworthy, EX22 6BB '

If you are interested in this property, you can fill in your details using our enquiry form and a member of our team will get back to you.

Please check you have entered all details correctly:

By submitting this form, you are agreeing to our website terms & conditions, and consenting to cookies being stored on your computer.

Free Sales Valuation

Want to know how much your property is worth?

Get an instant valuation of your property value.

Free Sales Valuation