Back

Combe Lane, Widemouth Bay, Bude, EX23 0AA

Detached House 4 Bedroom 2 Reception 2 Bathroom
EPC Rating: D59/C76
Asking price £645,000

What's your home worth?

We offer a FREE property valuation service so you can find out how much your home is worth instantly.

Key Features
  • SEA & COUNTRYSIDE VIEWS
  • WALKING DISTANCE TO THE BEACH AND COAST PATH.
  • 4 BEDROOMS, 2 BATHROOMS
  • LARGE PLOT BACKING ONTO OPEN FARMLAND
  • ENTRANCE DRIVEWAY AND GARAGE
  • LEVEL FRONT & REAR GARDENS.
  • NO ONWARD CHAIN.
  • EPC D
  • COUNCIL TAX BAND E.
FREE Instant Online Valuation in just 60 SECONDS
Click Here
Property Description

Additional Information

Situated in one of Widemouth Bay’s most desirable and peaceful residential settings, Combe Dale presents a rare opportunity to secure a beautifully updated and exceptionally spacious 4 bedroom, 2 bathroom detached dormer bungalow, positioned just a short, level walk from the beach. Recently redecorated throughout, the property now offers a bright, modern and versatile interior, perfectly suited to multi-generational living, those seeking a generous coastal home, or anyone looking for a superb holiday base moments from the shoreline.

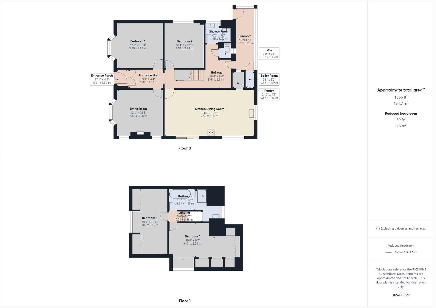
Occupying a large, level plot backing directly onto open farmland, the home enjoys wonderful countryside views from the ground floor and far-reaching sea views from the first floor. The accommodation extends to over 1,660 sq ft and is arranged to provide flexible room use, with the option of having two bedrooms on the ground floor and two further very spacious bedrooms upstairs.

The welcoming entrance hallway leads to a generous bay-fronted living room, offering excellent natural light and a lovely outlook to the front garden. To the rear lies the impressive open-plan kitchen/dining room, newly refreshed and designed to take advantage of wide countryside views, with sliding doors opening to the garden—ideal for family life and entertaining.

The ground floor also includes two double bedrooms (one with bay window), a further bedroom/home office, shower room, separate WC, a useful pantry, boiler room and a sunroom to the rear.

Upstairs, the first floor offers two superb, oversized double bedrooms with vaulted ceilings and excellent built-in storage. A modern and stylish family bathroom completes the upper floor, featuring a large walk-in shower, contemporary freestanding bath and countryside outlook.

Externally, the property enjoys excellent kerb appeal, with a wide private driveway providing ample off-road parking and access to the attached garage. The front and rear gardens are level, enclosed and generous in scale, offering multiple seating areas, scope for landscaping, and plenty of space for families, pets or outdoor living.

With Widemouth Bay’s sandy beach, surf, cafés and coastal path all within strolling distance, this substantial and well-presented coastal home is offered to the market with no onward chain and represents the ideal blend of space, location and lifestyle. EPC Rating: D. Council Tax Band: E.

Entrance Porch
1.3m x 0.9m (4'3" x 2'11")
Entrance Hall
2.84m x 1.32m (9'4" x 4'4")
Living Room
4.04m x 3.86m (13'3" x 12'8")
Hallway
5.6m x 2.6m (18'4" x 8'6")
Kitchen/Dining Room
7.52m x 3.78m (24'8" x 12'5")
Sun Room
5.2m x 1.65m (17'1" x 5'5")
Far reaching views to rear, overlooking open farmland. Cupboard housing oil fired boiler supplying ground floor heating and domestic hot water systems.
Bedroom 1
4.04m x 3.89m (13'3" x 12'9")
Bay window to front overlooking gardens.
Bedroom 2
3.78m x 3.33m (12'5" x 10'11")
Window to side elevation.
Shower Room
1.98m x 1.73m (6'6" x 5'8")
WC
1.12m x 0.91m (3'8" x 3'0")
First Floor Landing
Bedroom 3
5.64m x 3.05m (Max) (18'6" x 10'0")
Window to front with far reaching views across rooftops to the sea beyond.
Bedroom 4
6m x 2.92m (19'8" x 9'7")
Family Bathroom
3.3m x 1.83m (10'10" x 6'0")
Garage
4.52m x 3.66m (14'10" x 12'0")
Up and over garage door, personal door to rear seating area.
Outside
Recently laid resin bound driveway leading to Garage. Extensive level front garden laid to lawn, wide paved pathway to side leading to rear garden laid to lawn with far reaching views across open countryside. Pleasant paved seating area to rear of garage.
Services
Mains electric, water and drainage. Oil fired central heating.
EPC
Rating D
Council Tax
Band E
Anti Money Laundering
Before any sale is formally agreed, we have a legal obligation under the Money Laundering regulations and Terrorist Financing Act 2017 to obtain proof of your identity and of your address, take copies and retain on file for five years and will only be used for this purpose. We carry out this through a secure platform to protect your data. Each purchaser will be required to pay £20 upon an offer verbally being agreed to carry out these checks prior to the property being advertised as sale agreed.

Brochure (PDF 2.3MB)
FREE Instant Online Valuation in just 60 SECONDS
Click Here

Contact Us

Request a viewing for ' Combe Lane, Widemouth Bay, Bude, EX23 0AA '

If you are interested in this property, you can fill in your details using our enquiry form and a member of our team will get back to you.

Please check you have entered all details correctly:

By submitting this form, you are agreeing to our website terms & conditions, and consenting to cookies being stored on your computer.

Free Sales Valuation

Want to know how much your property is worth?

Get an instant valuation of your property value.

Free Sales Valuation