This site uses cookies to store information on your computer
Read more
We offer a FREE property valuation service so you can find out how much your home is worth instantly.
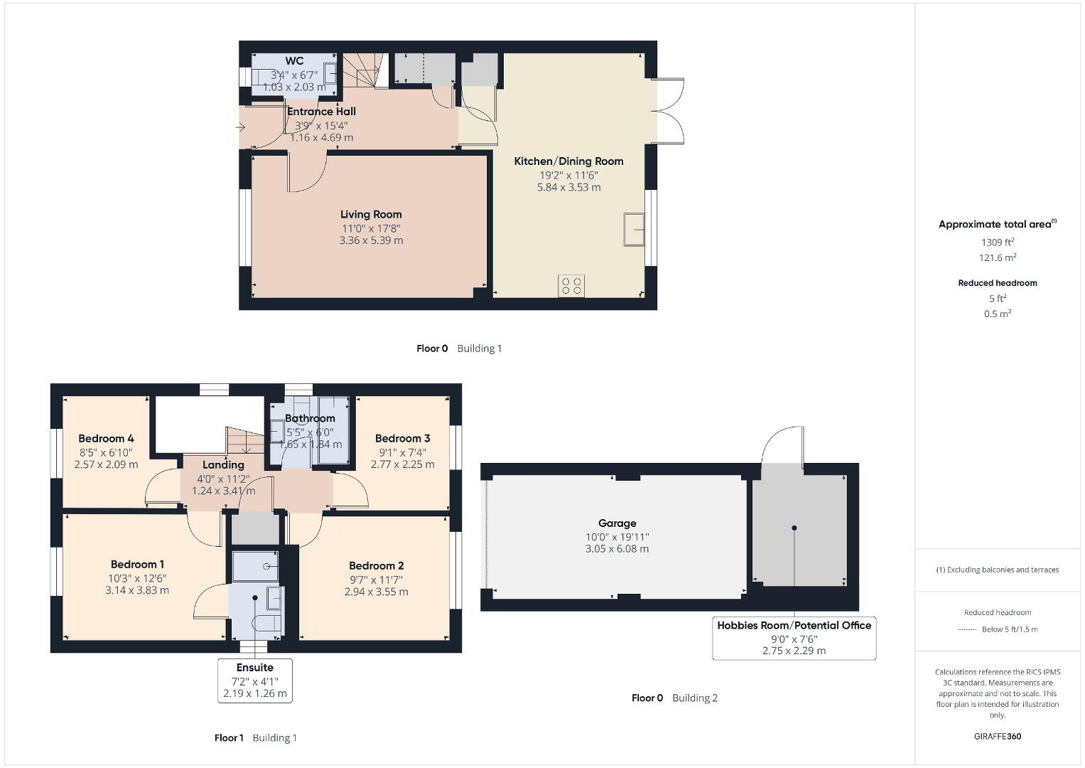
Situated within a popular modern residential development on the outskirts of Bude, we are delighted to bring to the market this attractive and well-proportioned 4 bedroom (1 ensuite) detached family home, offering comfortable accommodation arranged over two floors together with a detached garage, driveway parking and enclosed rear garden.
The property is entered via a welcoming entrance hall with ground floor cloakroom/WC, leading through to a generous living room enjoying good natural light and providing an ideal everyday living space. To the rear of the property is a well-proportioned kitchen/dining room, fitted with a range of modern units and offering ample space for family dining, with double doors opening directly onto the rear garden—perfect for both entertaining and indoor-outdoor living.
To the first floor, the accommodation comprises four bedrooms, including a principal bedroom with en-suite shower room, alongside a modern family bathroom. The remaining bedrooms are all well-sized and offer flexibility for family use, guests or home working.
The property further benefits from the remainder of an NHBC warranty, originally granted in 2023, providing additional peace of mind for prospective purchasers. EPC Rating B. Council Tax Band E.
Situated within a popular modern residential development on the outskirts of Bude, we are delighted to bring to the market this attractive and well-proportioned four bedroom detached family home, offering comfortable accommodation arranged over two floors together with a detached garage, driveway parking and enclosed rear garden.
If you are interested in this property, you can fill in your details using our enquiry form and a member of our team will get back to you.
This site uses cookies to store information on your computer
Read more