This site uses cookies to store information on your computer
Read more
We offer a FREE property valuation service so you can find out how much your home is worth instantly.
Perfectly positioned within the heart of Great Torrington, this double fronted property presents a rare opportunity to acquire a delightful family home. This bright, modern property is well-maintained and spacious, perfect for a growing family. Boasting five generously proportioned bedrooms, this property exudes a sense of space and comfort throughout. The bright and airy interiors are complemented by modern finishes and a well-maintained aesthetic, creating a welcoming atmosphere. The property features a large enclosed garden, perfect for outdoor entertaining or simply relaxing in the fresh air.
During the vendors tenure they have made vast improvements over the years. Partial rewires, a new boiler, new windows, a new kitchen, new bathrooms upstairs and down and a whole lot of decoration. This home has been loved and cared for. For me it is nice to have a peace of mind that these hidden costs have already been addressed.
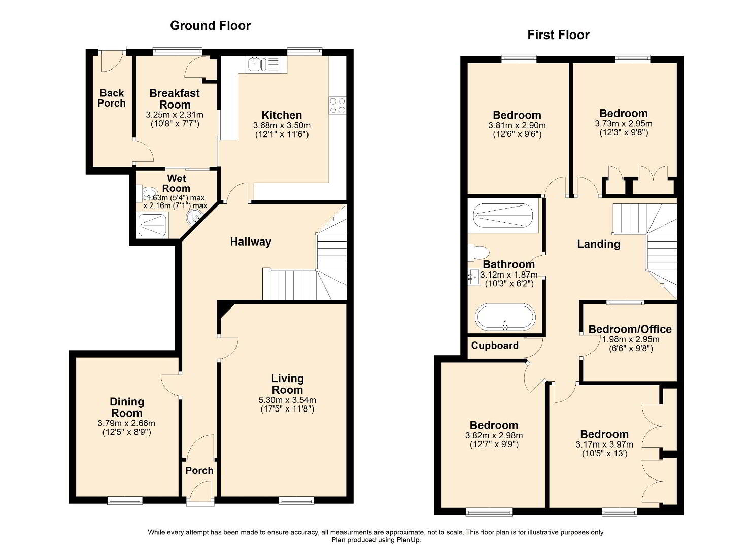
Upon entering the property there is an initial porch before the entrance hall where you will find your first two reception rooms. The first of these is the dining room which is a generous size and takes advantage of features like the two arched alcoves. On the opposite side of the hall, the living room stretches just over seventeen feet in length providing ample room for the whole family. Continuing to the end of the entrance hall you will find the beautiful staircase, the kitchen, breakfast room, wet room and back porch giving access to the garden. The kitchen being one of the biggest improvments, is now a striking navy blue coupled with white countertops. This now provides ample cupboard space for your storage needs. The now breakfast room creates a great space to keep an eye on the little ones however should you be looking for a utility, the vendors have kept the pipework to make this possible. The old downsize W/C has been revived into a wet room. If future planning is on your mind, this could be perfect to pair along with a downstairs bedroom, or for the time being a perfect space to wash down pets.
The first floor opens up into a wonderful sized landing, flooded with natural light that streams in though the velux window. Upstairs comprises of five bedrooms, four of which are double and a four piece family bathroom. Two of the four double bedrooms now benefit from built-in wardrobes creating a sleek space. The final bedroom has now had the original window reopened up allowing for a brighter space. Should you not need the fifth bedroom, this is a perfect office, hobbies room or play room. The four piece bathroom has been made bigger, and has been fully revamped taking advantage of a free standing bath, double shower, sink with vanity unit and toilet.
Outside the rear garden is a fairly level space with stone slabs and artificial grass, perfect for those of you seeking a low maintenance garden. The garden benefits from being fully enclosed with a feeling a privacy. If hosting family and friends is important then here is a great space to indulge in some alfresco dining and relaxation. Should you be looking to have a garden laid to lawn, this shouldn’t be an issue as the property previously enjoyed this type of garden.
Don't miss the chance to make this homely and spacious residence your own. Contact us today to arrange a viewing and discover the endless possibilities that await in this wonderful property.
Agent Notes:
The property does have a small flying freehold under a section of the upstairs bathroom.
The vendor informs us that the property is thought to be constructed of stone under a slate tiled roof. Your surveyor or conveyancer may be able to clarify further following their investigations.
Heating: Gas Combi boiler.
Mains water - Mains electric - Mains drainage – Mains gas - Landline telephone.
Broadband coverage: Superfast available, up to 80mbps download speed (information taken from Ofcom checker).
Mobile phone coverage: Available onsite, indoor limited and outdoor likely (see Ofcom checker for further information.
Agent Notes:
The property does have a small flying freehold under a section of the upstairs bathroom.
If you are interested in this property, you can fill in your details using our enquiry form and a member of our team will get back to you.
This site uses cookies to store information on your computer
Read more