Back

South Street, Sheepwash, Beaworthy, EX21 5LZ

Detached House 4 Bedroom 2 Reception 1 Bathroom
Guide price £375,000

What's your home worth?

We offer a FREE property valuation service so you can find out how much your home is worth instantly.

Key Features
  • What3Words ///drummers.fraction.averages
  • Four Bedroom Detached House
  • Peaceful Village Location In Sheepwash
  • Beautiful Countryside Views
  • Spacious Dual Aspect Living Room
  • Separate Dining Room
  • Well Equipped Kitchen
  • Ground Floor Cloakroom
  • Low Maintenance Wrap Around Garden
  • Large Garage With Home Office Or Playroom
  • Ideal For Families Or Remote Working
  • Easy Access To Hatherleigh And Okehampton
  • Council Tax Band - D
  • EPC - E
FREE Instant Online Valuation in just 60 SECONDS
Click Here
Property Description

Additional Information

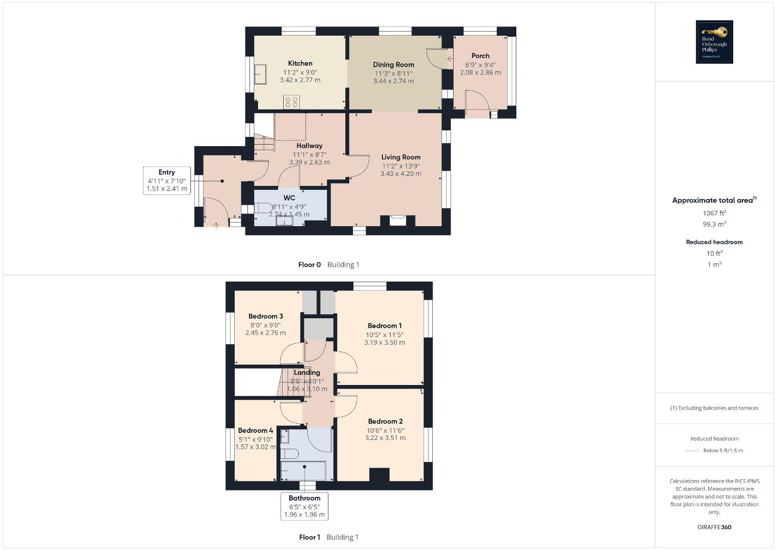
Tucked away in the heart of the picturesque village of Sheepwash, this charming four-bedroom detached house combines rural tranquillity with modern comfort. Enjoying far-reaching countryside views, the property features a bright dual-aspect living room, a sociable dining area, a well-equipped kitchen, and a handy ground-floor cloakroom. Upstairs offers four good-sized bedrooms and a family bathroom, with the principal bedroom boasting lovely views across the fields. Outside, the low-maintenance wrap-around garden is mainly decked, perfect for relaxing or entertaining, while the detached outbuilding provides a large garage and a versatile converted room ideal as a home office or playroom. Offering a peaceful lifestyle within a friendly Devon village, with nearby amenities in Hatherleigh and Okehampton, this home is perfect for families or those seeking a quieter pace of life.

Tucked away in a peaceful position within the picturesque village of Sheepwash, this delightful four-bedroom detached house offers a wonderful balance of rural charm and modern practicality. With far-reaching countryside views, a low-maintenance wrap-around garden, and a versatile garage with an adjoining home office or playroom, the property presents a fantastic opportunity for families or those seeking a quieter pace of life in an attractive Devon setting.

As you step inside, the welcoming hallway sets the tone for the rest of the home – bright, comfortable, and thoughtfully arranged. The spacious living room enjoys a dual aspect, allowing natural light to flood the space throughout the day. This inviting room provides an ideal area to relax and unwind, with ample space for both seating and family activities. The adjoining dining room is perfectly positioned for entertaining or family meals, seamlessly connecting to the kitchen and offering a sociable flow between the living areas.

The kitchen itself is well equipped, with plenty of storage and worktop space, complemented by a window overlooking the garden and surrounding countryside. A useful ground-floor cloakroom adds convenience, while a small porch to the front provides a practical everyday entrance, ideal for coats and boots after exploring the local countryside.

Upstairs, the home continues to impress, offering four well-proportioned bedrooms. The principal bedroom enjoys lovely views across the surrounding fields, creating a peaceful retreat at the end of the day. Two further double bedrooms provide excellent family accommodation, while the fourth bedroom could serve as a single bedroom, nursery, or home office. A family bathroom completes the first floor, fitted with a bath and shower over, WC, and wash basin.

Outside, the property benefits from a manageable wrap-around garden, designed with ease of maintenance in mind. Mainly laid to decking, it provides an ideal space for outdoor dining, summer barbecues, or simply enjoying the open views that make this setting so special. The garden has been thoughtfully designed to make the most of its position, offering a peaceful spot to relax and enjoy the surrounding countryside.

A particular feature of this home is the detached outbuilding, which includes a large garage and a separate, fully converted room currently used as a home office or playroom. This versatile space is perfect for anyone working from home, running a small business, or looking for a dedicated hobby or recreation area. The garage still offers excellent storage or parking, maintaining practicality without compromising on flexibility.

Sheepwash itself is a charming and traditional Devon village with a thriving sense of community. The village square, local pub, and access to scenic countryside walks are all close by, while the nearby towns of Hatherleigh and Okehampton offer a wider range of amenities, schooling, and transport links.

Combining village life, versatile accommodation, and picturesque surroundings, this attractive detached house is sure to appeal to a wide range of buyers seeking a well-balanced home in an idyllic Devon location.


Brochure (PDF 912.8KB)
FREE Instant Online Valuation in just 60 SECONDS
Click Here

Contact Us

Request a viewing for ' South Street, Sheepwash, Beaworthy, EX21 5LZ '

If you are interested in this property, you can fill in your details using our enquiry form and a member of our team will get back to you.

Please check you have entered all details correctly:

By submitting this form, you are agreeing to our website terms & conditions, and consenting to cookies being stored on your computer.

Free Sales Valuation

Want to know how much your property is worth?

Get an instant valuation of your property value.

Free Sales Valuation