Bond Oxborough Phillips (Torrington)

, Latch Lane, Langtree, Torrington EX38 8NQ

3 Bed Detached Bungalow For Sale

SOLD

Print additional images & map (disable to save ink)

Picture No. 09

Telephone:

01805 624426

View Online:

www.bopproperty.com/990857

Key Information

Address Latch Lane, Langtree, Torrington
Style Detached Bungalow
Bedrooms 3
Receptions 1
Bathrooms 2
Status Sold

Features

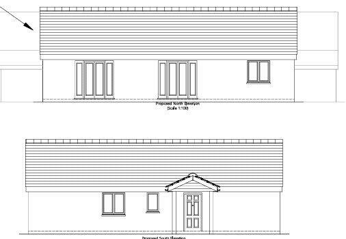
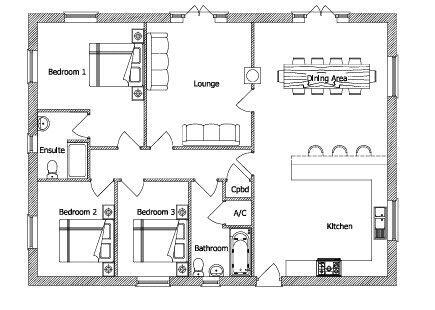
  • Planning for a three bedroom detached bungalow
  • Stunning edge of village location
  • Far reaching countryside views
  • Plot approaching 3/4 acre

Additional Information

Planning has been granted (1/0042/2023/FUL) to build a three bedroom detached bungalow within a stunning plot approaching 3/4 acre on the edge of the popular village of Langtree. This unique site is pleasantly situated and surrounded by countryside on three sides. On a clear day you have a fantastic view across to Exmoor National Park in the distance.

This is your ideal chance to build your dream home in a beautiful rural setting.

Langtree is handily placed and is often described as the gateway to everywhere. From here you can enjoy good road links to the market towns of Great Torrington and Bideford both within a 20 minute drive, also Exeter within an hour’s drive from Stibb Cross. In the other direction is the market town of Holsworthy, close to the Cornish borders. Within a two mile drive you can find yourself enjoying the locally renowned Tarka Trail a footpath/cycle way mainly built on the bed of a disused railway where all the gradients are gentle. It winds its way through some stunning woodland along the course of the River Torridge past Beam Weir, where Henry Williamson’s Tarka the Otter was born, from which the trail gains its name. It continues past Bideford and along the coast to Barnstaple where it splits and one leg turns inland again following the portion of the railway which is still in use the other continues on the bed of the disused railway and onto Ilfracombe. There are lots to do both regionally and locally. Within just a twenty minute drive you have the Plough arts centre / theatre, Dartington Crystal and The Royal Horticultural society gardens "Rosemoor" to enjoy.

Contact us today to arrange a viewing and experience the peaceful ambiance of this delightful home in the heart of the village.

  • Bond Oxborough Phillips

    Bond Oxborough Phillips (Torrington)

    01805 624426

Photo Gallery

Visit www.bopproperty.com for further details.