Bond Oxborough Phillips (Holsworthy)

Building Plot, 1 Long Park Drive, Bradworthy, Holsworthy EX22 7SR

Development Land For Sale

SOLD

Print additional images & map (disable to save ink)

Picture No. 08

Telephone:

01409 254238

View Online:

www.bopproperty.com/792020

Key Information

Address Building Plot, 1 Long Park Drive, Bradworthy, Holsworthy
Land type Development Land
Status Sold

Features

  • FULLY SERVICED BUILDING PLOT
  • DETAILED PLANNING FOR A DETACHED BUNGALOW
  • 2 EN-SUITE BEDROOMS
  • ADJOINING GARAGE
  • OFF ROAD PARKING
  • CONVENIENT LOCATION IN SOUGHT AFTER & WELL-APPOINTED VILLAGE
  • ONLY ABOUT 10 MILES FROM BUDE ON THE NORTH CORNISH COAST

Additional Information

This fully serviced building plot has detailed planning approval (Torridge District Council planning reference 1/1136/2022/FUL) for a detached bungalow with 2 en-suite bedrooms, adjoining garage, G.I.F.A. (Gross Internal Floor Area) excluding garage, is 95.87 sq m, and drive with 2 parking spaces. Option to build a stylish dormer house with 2 reception rooms, 3 bedrooms and integral garage, G.I.F.A. (Gross Internal Floor Area) excluding garage, is 126 sq m (Torridge District Council planning references 1/0692/2019/REM & 1/0422/2022/FUL). Conveniently located on the edge of one of the region's most sought after and well-appointed villages and only about 10 miles from Bude on the North Cornish coast.

(Gross Internal Floor Area) excluding garage is 126 sq m(Torridge District Council planning references 1/0692/2019/REM & 1/0422/2022/FUL).

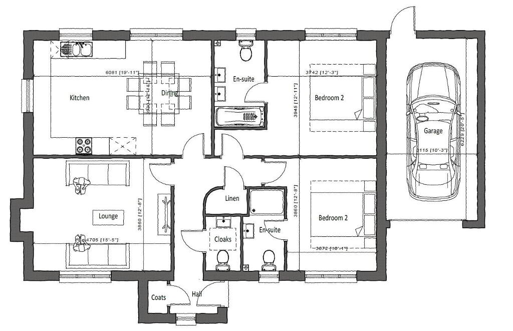
THE ACCOMMODATION COMPRISES (all measurements are approximate):-
The finished bungalow will extend to some 1,032 square feet and will offer accommodation briefly comprising:
ENTRANCE PORCH
with cloaks cupboard.
ENTRANCE HALL
with CLOAKROOM.
LOUNGE
4.7m x 3.86m (15'5" x 12'8")
with fireplace.
DOUBLE ASPECT OPEN PLAN KITCHEN/DINER
6.07m x 3.94m (19'11" x 12'11")
PRINCIPAL BEDROOM
3.94m x 3.73m (12'11" x 12'3")
with EN-SUITE BATHROOM.
BEDROOM 2
3.86m x 3.07m (12'8" x 10'1")
with EN-SUITE SHOWER.
OUTSIDE
The drive will give access to the:
ADJOINING GARAGE
7.44m x 3.12m (24'5" x 10'3")
The exterior elevations will be smooth painted render over a brick plinth, complemented by white PVCu double glazed windows and roof trim.
AGENTS NOTE
The vendors are partners of Bond Oxborough Phillips.
What3Words
announce.elders.blurs
  • Bond Oxborough Phillips

    Bond Oxborough Phillips (Holsworthy)

    01409 254238

Photo Gallery

Picture No. 08 Photo 2 of Building Plot, 1 Long Park Drive, Bradworthy, Holsworthy Photo 3 of Building Plot, 1 Long Park Drive, Bradworthy, Holsworthy Photo 4 of Building Plot, 1 Long Park Drive, Bradworthy, Holsworthy Pict Proposed Floorplan Picture No. 09 Google Maps Image

Visit www.bopproperty.com for further details.