Bond Oxborough Phillips (Ilfracombe)

, Ilfracombe EX34 9DN

8 Bed House For Sale

Sale agreed £375,000

Print additional images & map (disable to save ink)

Picture No. 08

Telephone:

01271 866699

View Online:

www.bopproperty.com/1053421

Key Information

Address Ilfracombe
Price Last listed at Asking price £375,000
Style House
Bedrooms 8
Receptions 3
Bathrooms 8
Status Sale agreed

Features

  • CALLING ALL INVESTORS
  • 8 generous ensuite bedrooms
  • Endless potential for holiday lets or HMOs
  • Beautiful landscaped garden
  • Sea views
  • 4 off-street parking spaces
  • Turnkey property
  • Arranged over 5 floors

Additional Information

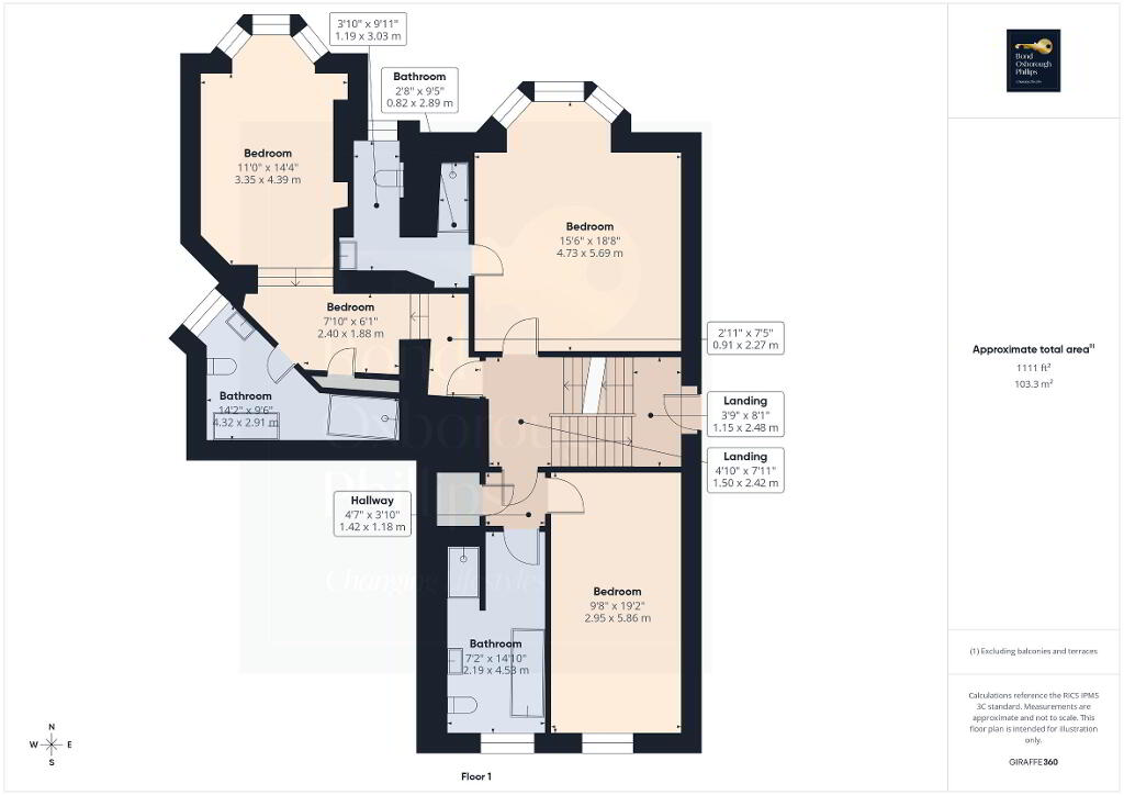
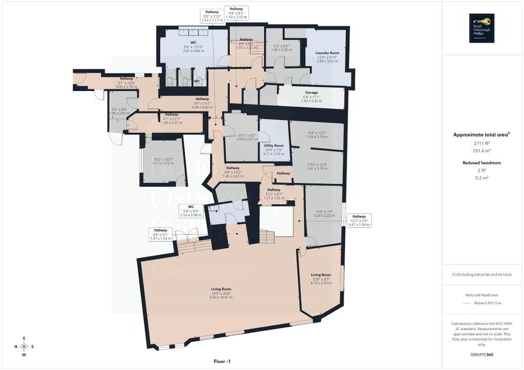
This remarkable eight-bedroom, eight-bathroom residence spans five impressive floors and offers over 7,700 sq ft of beautifully presented accommodation, making it exceptionally well suited to investors as well as large families. The property blends striking period character with modern comfort, and you enter through a grand open entrance hall on the ground floor—a bright, welcoming space with sweeping stairs rising to the upper levels. This floor provides superb living and entertaining areas, including a formal reception room, a dedicated office, a well-appointed kitchen with integrated appliances, and a spacious dining room complete with a useful pantry. Towards the rear, a large former commercial dining space offers outstanding versatility and flows seamlessly into the original Victorian conservatory, which opens onto a balcony with steps leading down to the private garden and four allocated parking spaces. The lower ground floor provides further scale, featuring plant rooms, storage areas, and a substantial games and entertainment room with additional rooms and a men’s WC—ideal for leisure or potential reconfiguration. Across the upper three floors are eight beautifully finished ensuite bedrooms, several of which benefit from elevated sea views, enhancing their appeal for both private use and short- or long-term rental opportunities. With generous proportions, elegant bay windows, and a tasteful finish throughout, the property requires little to no work. Its size, flexibility and turnkey condition combine to create an exceptional opportunity for investors seeking boutique accommodation potential or a high-end multi-unit residence.

Agent's Notes
This property is a traditional brick construction with a tiled roof, located within a conservation area and in an area with minimal or no flood risk. The property is not listed. It has direct connections to mains electricity, gas, water, and sewage services, with gas being the primary source of heating. The property also has access to broadband services via fibre to the house; however, broadband speeds are currently to be confirmed. Mobile service coverage is TBC. There are currently no planning permissions in place for this property or any nearby properties. The property does involve shared access via a path located in the rear garden; however, there are no other rights of way affecting the property. The property also includes flying freeholds. It is a leasehold (virtual freehold) property with approximately 999 years remaining on the lease. The property is rated under business rates rather than council tax. The EPC rating is TBC. The management fee and service charge are N/A. All material information provided is intended for guidance only. While we strive to ensure accuracy, we cannot guarantee the completeness or reliability of the information. Prospective buyers and tenants are advised to conduct their own investigations and seek professional advice before making any decisions. We accept no liability for any inaccuracies or omissions in the information provided.

Disclaimer

Bond Oxborough Phillips (“the Agent”) strives for accuracy in property listings, but details such as descriptions, measurements, tenure, and council tax bands require verification. Information is sourced from sellers, landlords, and third parties, and we accept no liability for errors, omissions, or changes.

Under the Consumer Protection from Unfair Trading Regulations 2008, we disclose material information to the best of our knowledge. Buyers and tenants must conduct their own due diligence, including surveys, legal advice, and financial checks.

The Agent is not liable for losses from reliance on our listings. Properties may be amended or withdrawn at any time. Third-party services recommended are independent, and we are not responsible for their advice or actions.

In order to market a property with Bond Oxborough Phillips or to proceed with an offer, vendors and buyers must complete financial due diligence and Anti-Money Laundering (AML) checks as required by law. We conduct biometric AML checks at £15 (inc. VAT) per buyer, payable before verification. This fee is non-refundable. By submitting an offer, you agree to these terms.

  • Bond Oxborough Phillips

    Bond Oxborough Phillips (Ilfracombe)

    01271 866699

Photo Gallery

Picture No. 08 Picture No. 07 Picture No. 36 Picture No. 22 Picture No. 24 Picture No. 23 Picture No. 02 Picture No. 03 Picture No. 09 Picture No. 13 Picture No. 14 Picture No. 15 Picture No. 16 Picture No. 20 Picture No. 17 Picture No. 19 Picture No. 18 Picture No. 06 Picture No. 04 Picture No. 05 Picture No. 10 Picture No. 11 Picture No. 12 Picture No. 25 Picture No. 26 Picture No. 27 Floorplan Floorplan Floorplan Floorplan Floorplan Floorplan Floorplan Floorplan

Visit www.bopproperty.com for further details.