Bond Oxborough Phillips (Bideford)

, Westward Ho, Bideford EX39 1HL

3 Bed Detached House For Rent

Let agreed £1,300 / month

Print additional images & map (disable to save ink)

Photo 1 of Westward Ho, Bideford

Telephone:

01237 477411

View Online:

www.bopproperty.com/1046540

Key Information

Address Westward Ho, Bideford
Rent Last listed at Price £1,300 / month
Deposit £1,500
Available From 1 Feb 2026
Style Detached House
Bedrooms 3
Receptions 1
Bathrooms 1
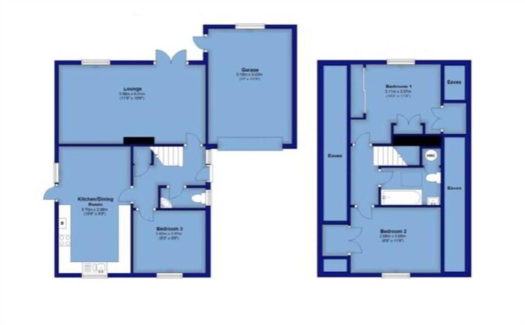
Size 92 sq. metres
EPC Rating C72/B85
Status Let agreed

Additional Information

Stylish detached chalet bungalow conveniently located within level walking distance to the beach and local amenities.

The property offers gas central heating and double glazing throughout.

The accommodation comprises of a modern kitchen with integrated appliances, lounge with French doors leading onto an enclosed garden.

Three double bedrooms and a family bathroom.

Garage and driveway parking.

EPC = C Council Tax = C

All measurements are approximate and for guidance only:

Tenants will need to be able to provide information to show a verifiable combined income of at least £39,000 per annum, each tenant over the age of 18 years will need to pass a credit search showing no adverse credit history.

Information relating to the construction and energy efficiency of the property as per the Energy Performance Certificate (EPC) carried out on 23rd May 2022 states the following:

Feature Description Rating
Wall Cavity wall, filled cavity Good
Roof Pitched, 300 mm loft insulation Very good
Roof Roof room(s), insulated (assumed) Good
Window Fully double glazed Good
Main heating Boiler and radiators, mains gas Good
Main heating control Programmer, room thermostat and TRVs Good
Hot water From main system Good
Lighting Low energy lighting in all fixed outlets Very good
Floor Solid, no insulation (assumed) N/A
Secondary heating None N/A


Information relating to broadband and mobile network coverage can be obtained from Ofcom`s `broadband and mobile coverage checker`.

Agent`s note 1: Whilst best efforts have been made to ensure that the information provided on this listing is accurate at the date of publishing, we would always strongly recommend that should any of the above information be material to informing your decision as to whether or not to rent this property that you undertake your own enquiries in order to verify the validity.

Agents note 2: Photos may be historic


Notice
All photographs are provided for guidance only.

Redress scheme provided by: Property Redress
Client Money Protection provided by: UKALA (008532)
  • Bond Oxborough Phillips

    Bond Oxborough Phillips (Bideford)

    01237 477411

Photo Gallery

Photo 1 of Westward Ho, Bideford Photo 2 of Westward Ho, Bideford Photo 3 of Westward Ho, Bideford Photo 4 of Westward Ho, Bideford Photo 5 of Westward Ho, Bideford Photo 6 of Westward Ho, Bideford Photo 7 of Westward Ho, Bideford Floorplan 1 of Westward Ho, Bideford EPC 1 of Westward Ho, Bideford

Visit www.bopproperty.com for further details.