Bond Oxborough Phillips (Ilfracombe)

, Ilfracombe EX34 9NQ

2 Bed Maisonette For Sale

Asking price £195,000

Print additional images & map (disable to save ink)

Picture No. 17

Telephone:

01271 866699

View Online:

www.bopproperty.com/1043123

Key Information

Address Ilfracombe
Price Asking price £195,000
Style Maisonette
Bedrooms 2
Receptions 2
Bathrooms 2
EPC Rating C75/B85
Status For sale

Features

  • Tastefully presented throughout
  • Private outside space
  • Bustling location for a business
  • Double fronted shop windows for maximum exposure
  • Generous living accommodation
  • 2 Spacious bedrooms
  • EPC: C
  • Council Tax Band: A

Additional Information

This fantastic opportunity offers a fully refurbished retail shop/office space together with a two-bedroom maisonette, finished to an exceptional standard throughout. Perfect for investors, the property fully complies with the latest rental regulations, including fitted fire doors and a hard-wired smoke alarm system.

Previously operating as a local newsagent, the property has been completely transformed to combine a stylish, modern living space above a versatile retail unit, complemented by a small landscaped garden and courtyard to the rear.

The accommodation has been thoughtfully redesigned to provide the comfort and practicality of a contemporary home. The ground floor comprises a lock-up shop with a cloakroom and a small store room, ideal for a range of business uses. The self-contained maisonette above features two bedrooms (one en-suite), a guest bathroom, an additional cloakroom, and a stunning new kitchen/breakfast room fitted with modern appliances.

Externally, the property benefits from a south-facing courtyard and a gravelled rear garden with shared access.

The entire property has been extensively modernised, including new gas-fired radiator central heating, a complete rewire, and high-quality internal finishes throughout.

This is a superb investment opportunity offering both commercial and residential potential, or alternatively, a perfect purchase for an owner-occupier seeking a live/work lifestyle in a convenient and desirable location.

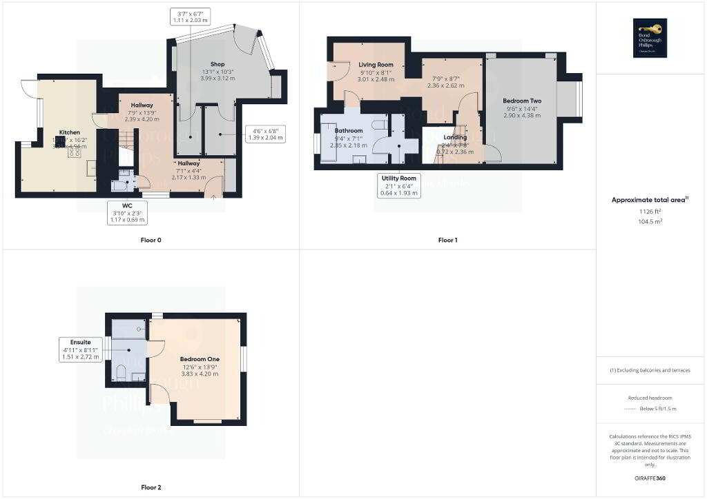
Shop
4m x 3.12m (13'1" x 10'3")
Partly glazed window to front elevation, spot lighters, panel floor, cupboard housing fuse box, door leading to;
W.C
1.37m x 2.03m (4'6" x 6'8")
Plumbing for W.C.
Storage Cupboard
1.1m x 2m (3'7" x 6'7")
Storage space.
Main Entrance
Wooden door leading to;
Entrance Hall
UPVC double glazed obscure window to side elevation, storage cupboard housing electric and gas meter, stairs to first floor, tiled floor, spot lighters, radiator.
W.C
1.17m x 0.69m (3'10" x 2'3")
Wall mounted wash hand basin with storage below, low level W.C, tiled floor, extractor fan, spot lighters, alarm system.
Kitchen/Diner
3.3m x 4.93m (10'10" x 16'2")
Dining Area
UPVC double glazed window to rear elevation, UPVC double glazed door to rear elevation leading to garden, tiled flooring, spot lighters, radiator.
Kitchen
Double glazed window to side elevation, a range of wall and base units, slate countertops, integrated sink and drainer, Bosch double oven, AEG wine cooler, fridge, AEG 4 ring induction hob with extractor hood above.
Landing
Consumer unit location, panelled floor, radiator, door leading to;
Bedroom Two
2.9m x 4.37m (9'6" x 14'4")
Partly glazed sash bay window to front elevation, spot lighters, wood effect flooring, radiator.
Living Room
3m x 2.7m (9'10" x 8'10")
UPVC double glazed window to rear elevation, wood effect floor, spot lighters, radiator.
Bathroom
2.84m x 2.16m (9'4" x 7'1")
UPVC double glazed window to rear elevation, freestanding bath, wash hand basin with vanity above and storage below, low level W.C, extractor fan, heated towel rail.
Storage Cupboard
0.64m x 1.93m (2'1" x 6'4")
Plumbing for washing machine, location of combi boiler, spot lighters.
Second Floor
Half Landing
UPVC double glazed window to rear elevation, exposed brick feature wall, spot lighters.
Bedroom One
3.8m x 4.2m (12'6" x 13'9")
Sash window to front elevation, exposed character beams, built in storage, radiator, door leading to;
Ensuite
1.5m x 2.72m (4'11" x 8'11")
UPVC double glazed window to rear elevation, double shower cubicle with handheld attachment, low level W.C, wash hand basin with storage below and vanity above, heated towel rail, tiled from floor to ceiling.
AGENT NOTES
This property is registered under Land Registry Title Number [To be confirmed] with UPRN 100040265093 and is held on a Freehold tenure. Measuring approximately 785 ft² (73 m²), it falls under Devon County Council with a Very Low recorded flood risk and is located within the Ilfracombe Conservation Area. Services include gas central heating, mains water, and mains drainage. Parking is on-street, and the property benefits from a south-facing rear garden featuring level artificial grass, timber sleepers, a gravel area, and a porcelain-tiled walkway. It falls within Council Tax Band A, with an annual cost of approximately £1,698.27, and has an EPC rating of C. There are no known building safety issues and no current planning applications for this property or any neighbouring properties. Connectivity is good, with broadband speeds up to 80 Mbps (superfast), mobile coverage from EE, Vodafone, Three, and O2 rated as good, and TV/satellite services available via BT, Sky, and Virgin Media

Disclaimer

Bond Oxborough Phillips (“the Agent”) strives for accuracy in property listings, but details such as descriptions, measurements, tenure, and council tax bands require verification. Information is sourced from sellers, landlords, and third parties, and we accept no liability for errors, omissions, or changes.

Under the Consumer Protection from Unfair Trading Regulations 2008, we disclose material information to the best of our knowledge. Buyers and tenants must conduct their own due diligence, including surveys, legal advice, and financial checks.

The Agent is not liable for losses from reliance on our listings. Properties may be amended or withdrawn at any time. Third-party services recommended are independent, and we are not responsible for their advice or actions.

In order to market a property with Bond Oxborough Phillips or to proceed with an offer, vendors and buyers must complete financial due diligence and Anti-Money Laundering (AML) checks as required by law. We conduct biometric AML checks at £15 (inc. VAT) per buyer, payable before verification. This fee is non-refundable. By submitting an offer, you agree to these terms.

  • Bond Oxborough Phillips

    Bond Oxborough Phillips (Ilfracombe)

    01271 866699

Photo Gallery

Picture No. 17 Picture No. 02 Picture No. 03 Picture No. 04 Picture No. 05 Picture No. 06 Picture No. 07 Picture No. 08 Picture No. 09 Picture No. 10 Picture No. 11 Picture No. 12 Picture No. 13 Picture No. 14 Picture No. 15 Picture No. 16 Floorplan EPC Rating Graph

Visit www.bopproperty.com for further details.