Bond Oxborough Phillips (Torrington)

, Bradworthy, Holsworthy EX22 7QR

3 Bed Detached House For Rent

Let agreed £895 / month

Print additional images & map (disable to save ink)

Front

Telephone:

01805 624426

View Online:

www.bopproperty.com/1038961

Key Information

Address Bradworthy, Holsworthy
Rent Last listed at £895 / month
Deposit £1,032
Available From Now
Furnished Unfurnished
Style Detached House
Bedrooms 3
Receptions 1
Bathrooms 2
EPC Rating D58/C71
Status Let agreed

Additional Information

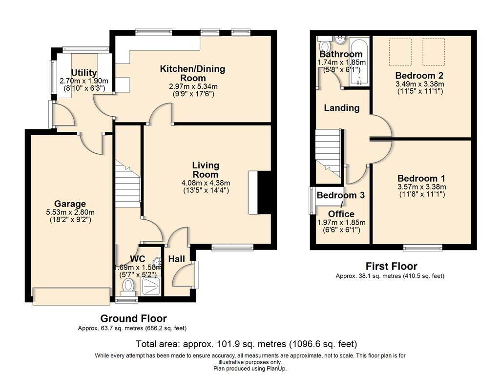
This 3 bedroom detached home is situated in a pleasant cul-de-sac on the edge of the village of Bradworthy. The home briefly comprises of a good sized living room, generous kitchen / dining room with a utility accessed off this. There is a ground floor shower room. Upstairs are two well proportioned bedrooms and a single bedroom, along with 3 piece bathroom.

Outside, the home is approached by a driveway which leads to the garage and area of lawn at the front. There is a side access gate that leads into the rear garden, however you can also access the rear garden from the utility room. The rear garden is predominantely laid to lawn, providing an easy and low maintenance garden to care for.

The property is available to view immediately. EPC - D

EPC - D

We have been advised that the council tax is band C (information taken from gov.uk council tax checker).

The water is serviced by mains water & sewerage.

The electricity is supplied by mains electric. The heating is served by an oil fired boiler.

There is no gas available at the property.

Fibre broadband is available (information pertaining to speeds are available from https://checker.ofcom.org.uk/ or https://www.openreach.com/fibre-checker/). Please note that it is not the landlords responsibility to provide a fixed telephone line to the property and any prospective tenant should check this before committing to a tenancy.
Mobile phone coverage: Available indoors and outdoors (see Ofcom checker for further information)

The rent for the property is £895.00 per calendar month, exclusive of all outgoings and payable monthly in advance. The property will be let on a six month assured shorthold tenancy.

Please note that there will be one weeks holding deposit to secure property which equates to £206.00.

In addition to the first months rent a deposit of £1032.00 will be required. Bond Oxborough Phillips Lettings will pay the deposit to the Deposit Protection Service DPS, (the government run scheme). Following receipt of the deposit, The DPS will provide confirmation to you. The full details are available on their website www.depositprotection.com.

Please Note Permitted Payments:

- One weeks holding deposit to secure property. This will go against the first months rent providing that you do not withdraw your application or do not disclose vital information

- £50 Inc VAT administration fee for any changes to the tenancy (when requested by the tenant)

- Early termination fee (only when agreed in writing from the landlord), £50 Inc VAT administration fee plus any agreed reasonable costs (as agreed with landlord)

- Lost Keys / Security Devices, replacement will be charged at cost to the tenant. Charges can be upto £30 Inc VAT

- Late rent. We reserve the right to charge interest; this can be added to each day after the rent due date. Charged at an annual percentage rate of +3% above the Bank of England base rate until full payment is made.

The property is let as seen. Standard references will be required. Please note that all measurements are only approximate and are purely given as a guide. Please refer to Bond Oxborough Phillips Lettings guidance notes for prospective tenants.

If you would like to view the property, or if you require any further information, please do not hesitate to contact Bond Oxborough Phillips Lettings.

Viewing is strictly through BOND OXBOROUGH PHILLIPS LETTINGS and by appointment only.

Bond Oxborough Phillips Torrington obtains Client Money protection through CMP (Client Money Protect). Membership no: CMP003350

Bond Oxborough Phillips Torrington are members of The Property Ombudsman. Membership No: R00193-3

  • Bond Oxborough Phillips

    Bond Oxborough Phillips (Torrington)

    01805 624426

Photo Gallery

Front Photograph Photograph Photograph Photograph Photograph Photograph Photograph Photograph Photograph Photograph Photograph Floorplan

Visit www.bopproperty.com for further details.