Bond Oxborough Phillips (Torrington)

, Torrington EX38 7EZ

3 Bed Detached House For Sale

SOLD

Print additional images & map (disable to save ink)

Picture No. 34

Telephone:

01805 624426

View Online:

www.bopproperty.com/1024777

Key Information

Address Torrington
Style Detached House
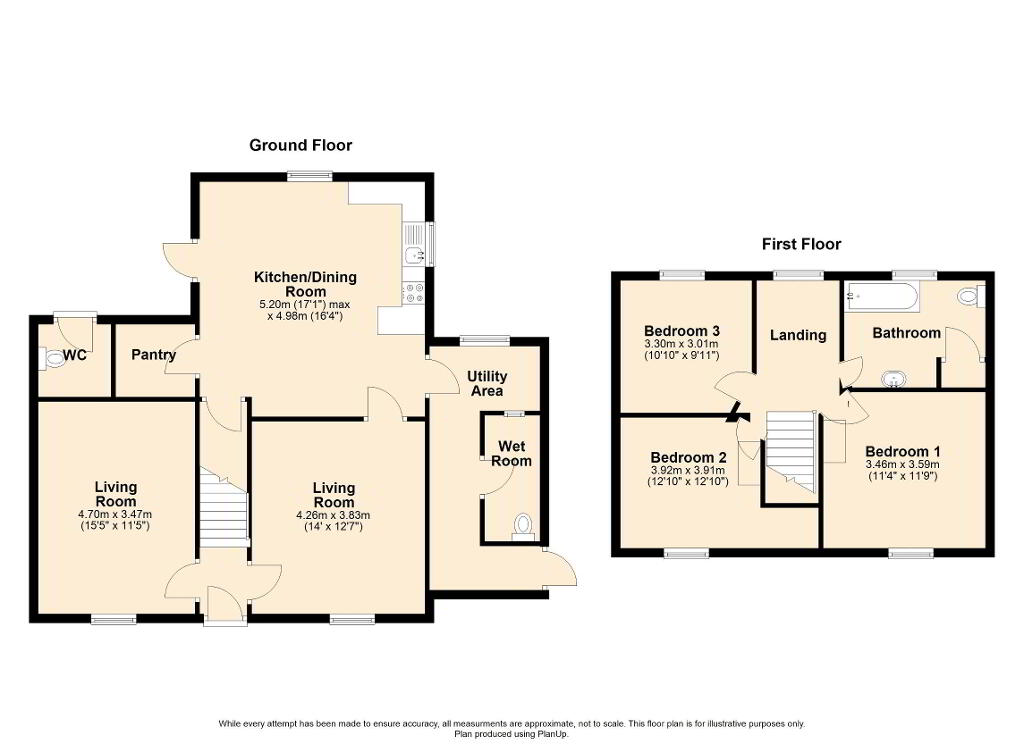
Bedrooms 3
Receptions 2
Bathrooms 2
EPC Rating D61/A92
Status Sold

Features

  • Period home
  • Panoramic views
  • Three bedrooms
  • Wetroom & Bathroom
  • Two reception rooms
  • Large Plot
  • Nearby Commons

Additional Information

Tucked away in complete privacy on the outskirts of Great Torrington, Locksbeam Cottage is a truly rare find a charming three-bedroom detached family home set within its own generous wrap-around plot, enjoying uninterrupted panoramic views of rolling Devon countryside.

From the moment you arrive through the private gated driveway, you'll appreciate just how secluded this property is – so much so, it's often missed by passers-by. Yet despite the tranquil setting, Making this the perfect blend of rural peace and urban convenience.

Inside, the property offers spacious, versatile living with two sizeable reception rooms, a large kitchen/diner, utility room, walk-in pantry, ground-floor WC, and a wet room. All rooms are well proportioned, flooded with natural light, and perfectly suited to family life or entertaining. Upstairs, three comfortable bedrooms offer peaceful retreats, ideal for a growing family or anyone seeking space and flexibility.

Outside, the raised patio area is a standout feature – perfect for relaxing, al fresco dining, or simply soaking in the breathtaking views that stretch as far as the eye can see. The home also benefits from a detached garage and ample parking.

This easy-to-maintain home is ideal for first-time buyers, families, or those seeking a sound investment opportunity, with strong appeal for anyone looking for countryside living without compromising on amenities. You'll find yourself within driving distance of popular primary and secondary schools, Torrington Commons, and a range of local shops and services.

Nature lovers and outdoor enthusiasts will also be drawn to the Tarka Trail, just a stroll away. Whether walking, running, or cycling, this scenic route winds through the Torridge Valley and beyond, offering endless opportunities to explore Devon’s natural beauty.

Locksbeam Cottage is a property that must be seen to be believed – private, spacious, and surrounded by nature, yet incredibly well connected. A true haven in the heart of North Devon.

Locksbeam Cottage - A Hidden Gem on the Edge of Great Torrington.

The vendor informs us that the property is thought to be constructed of brick under a tiled roof. Your surveyor or conveyancer may be able to clarify further following their investigations.

Heating: Gas boiler

Mains water - Mains electric – private drainage - Landline telephone.

Broadband coverage: Superfast available up to 80mbps (information taken from Ofcom checker)

Mobile phone coverage: Available onsite (see Ofcom checker for further information)

  • Bond Oxborough Phillips

    Bond Oxborough Phillips (Torrington)

    01805 624426

Photo Gallery

Picture No. 34 Picture No. 36 Picture No. 29 Picture No. 25 Picture No. 12 Picture No. 13 Picture No. 11 Picture No. 14 Picture No. 15 Picture No. 16 Picture No. 18 Picture No. 19 Picture No. 21 Picture No. 20 Picture No. 22 Picture No. 28 Picture No. 30 Front Picture No. 35 Picture No. 37 Picture No. 39 Picture No. 41 Picture No. 31 Floorplan EPC Rating Graph

Visit www.bopproperty.com for further details.