Bond Oxborough Phillips (Wadebridge)

, Bodmin PL31 2BN

3 Bed Detached Bungalow For Sale

SOLD

Print additional images & map (disable to save ink)

Picture No. 32

Telephone:

01208 814055

View Online:

www.bopproperty.com/1022925

Key Information

Address Bodmin
Style Detached Bungalow
Bedrooms 3
Bathrooms 1
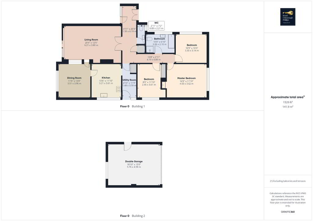
Size 1,529 sq. feet
EPC Rating D60/B81
Status Sold

Features

  • Spacious 3-bedroom detached bungalow
  • Set on a generous 0.55-acre corner plot
  • Private driveway with parking for multiple vehicles
  • Double garage with electric roller door and power
  • Mature, well-established gardens offering privacy and space
  • Light-filled living room with floor-to-ceiling sliding doors
  • Popular Town Location
  • Council Banding - E
  • EPC - D

Additional Information

Occupying one of the largest plots within the highly sought-after Bramley Park estate, this three-bedroom detached bungalow offers a rare opportunity to acquire a home with both space and potential in abundance.

In summary, 16 Bramley Park is a fantastic opportunity to secure a spacious, detached bungalow in a rarely available position. With exceptional views, a substantial plot, and enormous potential for modernisation or extension, this is a property that will appeal to buyers seeking space, privacy, and a home they can make their own.

Set on a generous 0.55-acre corner plot, the property boasts stunning panoramic views over Bodmin town and the rolling Cornish countryside beyond. With mature gardens, a large double garage, and flexible internal layout, 16 Bramley Park is perfect for families, downsizers, or anyone looking to put their own stamp on a forever home.

Upon entering, you're welcomed into a spacious hallway that immediately sets the tone for the property – light, open, and full of promise. Off to the right is a convenient WC and a useful storage cupboard, ideal for coats, shoes, and household essentials. From the hallway, double doors open into the main living room, a wonderfully spacious area featuring a floor-to-ceiling sliding door that captures the breathtaking views and floods the room with natural light. This is a perfect space to unwind in the evenings while enjoying the ever-changing landscape outside.

Moving through, the formal dining room offers an inviting area for entertaining or family meals. A large double window ensures the room remains bright and airy, creating a warm and welcoming atmosphere. Adjacent is the kitchen, which offers ample cupboard space and worktop area for day-to-day living. There is great potential here to open up the space into an impressive open-plan kitchen/diner (subject to the correct planning permissions). A separate utility room provides additional storage, space for white goods, and access to the outside – a practical feature for families or pet owners.

The bedroom accommodation is positioned just a few steps up from the living areas, offering a sense of separation and privacy. Here, you’ll find three generous double bedrooms, all well-proportioned and offering flexibility for use as guest rooms, offices, or hobby spaces. The master bedroom is a standout, featuring a large rear-facing window that overlooks the private rear garden, giving a daily reminder of the exceptional plot and setting this home enjoys. The family bathroom is complete with a separate bath, shower, WC, and basin.

Outside, the home truly comes into its own. Set on a substantial corner plot, the grounds are mature, well-established, and bursting with potential. A private driveway leads up to the property, providing a welcoming approach and ample parking for multiple vehicles. Whether you’re a keen gardener, need space for children to play, or simply enjoy having room to breathe, the outdoor space offers something special. To the left of the garage, a gated parking area provides secure storage for a motorhome, boat, or additional vehicles. The double garage, complete with power and an electric roller door, adds valuable storage and workshop potential.

  • Bond Oxborough Phillips

    Bond Oxborough Phillips (Wadebridge)

    01208 814055

Photo Gallery

Picture No. 32 Picture No. 29 Picture No. 22 Picture No. 19 Picture No. 18 Picture No. 17 Picture No. 24 Picture No. 23 Picture No. 26 Picture No. 28 Picture No. 25 Picture No. 27 Picture No. 04 Picture No. 06 Picture No. 05 Picture No. 08 Picture No. 09 Picture No. 12 Picture No. 13 Picture No. 14 Picture No. 16 Picture No. 31 Picture No. 30 Floorplan Floorplan Floorplan EPC Rating Graph

Visit www.bopproperty.com for further details.