Bond Oxborough Phillips (Tavistock)

Blackabrook Avenue, Princetown, Yelverton PL20 6RH

3 Bed Semi-detached House For Sale

SOLD

Print additional images & map (disable to save ink)

Picture No. 26

Telephone:

01822 600700

View Online:

www.bopproperty.com/1013703

Key Information

Address Blackabrook Avenue, Princetown, Yelverton
Style Semi-detached House
Bedrooms 3
Receptions 1
Bathrooms 1
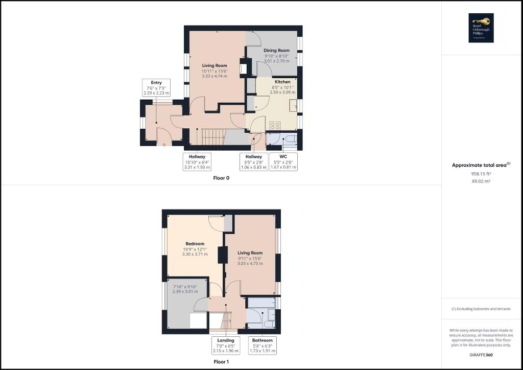
Size 958 sq. feet
EPC Rating D64/C73
Status Sold

Features

  • Semi Detached home
  • Garage/Off Road Parking
  • Large Garden
  • Offering three bedrooms
  • Family Sized Bathroom
  • Cash Buyers Only
  • Popular Villlage Location
  • New Air Source Heat Pump & Solar Panels

Additional Information

This non-traditionally built property, available to cash buyers only, offers great potential as a family home with scenic moorland views. Featuring a porch, living room, kitchen/diner, cloakroom, three bedrooms, and a family bathroom, it also benefits from ample off-road parking, a generous rear garden with a timber shed, and a garage in a nearby block. Recent upgrades include an air source heat pump and solar panels, adding to its appeal and energy efficiency.

This distinctive property, constructed using non-traditional methods, presents a fantastic opportunity for those seeking a home with character and potential. Ideally suited to cash buyers, it offers the chance to create a charming family residence in a peaceful setting, with far-reaching views over open moorland.

The ground floor comprises an entrance porch, a spacious living room, a well-proportioned kitchen/dining area, and a convenient cloakroom. Upstairs, the layout includes two generous double bedrooms, a single bedroom, and a family bathroom.

Externally, the property benefits from ample off-road parking and a sizeable rear garden, complete with a useful timber shed—perfect for storage or workshop use. A single garage, located in a nearby block, adds further practicality.

Sustainability has been considered, with the recent installation of an air source heat pump and solar panels, helping to reduce running costs and environmental impact.

This is a rare opportunity to acquire a home with great potential in a scenic location—early viewing is highly recommended.

  • Bond Oxborough Phillips

    Bond Oxborough Phillips (Tavistock)

    01822 600700

Photo Gallery

Picture No. 26 Picture No. 32 Picture No. 33 Picture No. 28 Picture No. 29 Picture No. 30 Picture No. 31 Picture No. 34 Picture No. 36 Picture No. 35 Picture No. 27 Picture No. 43 Picture No. 38 Picture No. 39 Picture No. 41 Picture No. 42 Picture No. 40 Picture No. 44 Picture No. 45 Floorplan EPC Rating Graph

Visit www.bopproperty.com for further details.