Bond Oxborough Phillips (Torrington)

, Winkleigh EX19 8TN

2 Bed Detached Bungalow For Sale

SOLD

Print additional images & map (disable to save ink)

Front

Telephone:

01805 624426

View Online:

www.bopproperty.com/1011448

Key Information

Address Winkleigh
Style Detached Bungalow
Bedrooms 2
Receptions 2
Bathrooms 2
Heating Oil
EPC Rating D58/C77
Status Sold

Features

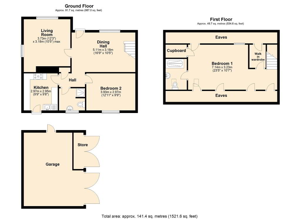
  • Two bedroom detached chalet bungalow
  • Log burning stove
  • Double garage with inspection pit
  • Ensuite shower room to master bedroom
  • Separate shower room on the ground floor
  • Fitted kitchen
  • Enclosed garden to the front

Additional Information

A charming and modern detached bungalow nestled in the heart of a peaceful farming village setting. This delightful property boasts two spacious bedrooms on each level, one with an ensuite shower room, perfect for a small family or couple looking for a cosy and inviting home. The bungalow is well-maintained and offers a bright and airy living space, creating a comfortable and homely atmosphere.

With a well-manicured garden fully enclosed from the lane and a good sized double garage with inspection pit, this property provides both convenience and tranquillity. The interior is clean and well-lit, enhancing the modern feel of the home. Enjoy the quiet surroundings and relax in this affordable yet stylish abode.

Don't miss the opportunity to make this charming bungalow your own. Contact us today to arrange a viewing and experience the peaceful living this property has to offer.

Within a nine mile drive you can find yourself on the Tarka trail, a footpath/cycle way mainly built on the bed of a disused railway where all the gradients are gentle. It winds its way through some stunning woodland along the course of the River Torridge past Beam Weir, where Henry Williamson’s Tarka the Otter was born, from which the trail gains its name. It continues past Bideford and along the coast to Barnstaple where it splits and one leg turns inland again following the portion of the railway which is still in use the other continues on the bed of the disused railway and onto Ilfracombe. Both Dartmoor and Exmoor national parks are within an hour’s drive away. The closest coastline is only a 15 mile drive and is very popular with surfers and body borders alike.

Ticking boxes aside, it is in my experience that the feel of the home is what will make you buy it. Only by visiting this beautiful home you will know if it is "the one". I strongly urge you to take the time to experience it for yourself and would love the opportunity to meet with you there to help embed what you see on paper in the flesh.

The vendor informs us that the property is of block and render construction under a tiled roof. Your surveyor or conveyancer maybe able to clarify further following their investigations. The property is serviced by oil fired central and water heating. There is also a solid fuel burning stove located in the living room. Mains electric, water and drainage are connected.

Broadband: Standard speeds are available up to 3mbps (information taken from the Ofcom checker) This speed can be vastly improved upon by the use of Airband or Starlink systems.

Mobile phone: Coverage available onsite. (See Ofcom checker for further information)

N.B The driveway is shared with the next door property

(See Ofcom checker for further information)

N.B The driveway is shared with the next door property

  • Bond Oxborough Phillips

    Bond Oxborough Phillips (Torrington)

    01805 624426

Photo Gallery

Front Picture No. 08 Picture No. 07 Picture No. 15 Picture No. 10 Picture No. 11 Picture No. 14 Picture No. 05 Picture No. 06 Picture No. 12 Picture No. 13 Picture No. 17 Picture No. 18 Picture No. 16 Picture No. 19 Picture No. 21 EPC Rating Graph Floorplan

Visit www.bopproperty.com for further details.